外観
ヴォーガコルテ多摩川は大田区多摩川にある築19年(2006年5月築)の6階建鉄筋コンクリート造マンション。 最寄り駅の東急多摩川線「矢口渡」駅徒歩3分。東急池上線「蓮沼」駅徒歩11分です。 セキュリティ面では、オートロック・防犯カメラで安心。単身や女性の方にもおすすめです。 共用設備には、エレベーター・宅配ボックスがございます。 間取りは現在1Kをご用意しております。 室内設備はフローリング・ケーブルテレビ・バルコニー・クローゼット・下駄箱・室内洗濯機置場・エアコン付きがあり充実した設備環境です。 現在エアドアに賃貸募集中の部屋が1件掲載されています。 気になった方はお気軽にお問合わせください。
ヴォーガコルテ多摩川は大田区多摩川にある築19年(2006年5月築)の6階建鉄筋コンクリート造マンション。 最寄り駅の東急多摩川線「矢口渡」駅徒歩3分。東急池上線「蓮沼」駅徒歩11分です。 セキュリティ面では、オートロック・防犯カメラで安心。単身や女性の方にもおすすめです。 共用設備には、エレベーター・宅配ボックスがございます。 間取りは現在1Kをご用意しております。 室内設備はフローリング・ケーブルテレビ・バルコニー・クローゼット・下駄箱・室内洗濯機置場・エアコン付きがあり充実した設備環境です。 現在エアドアに賃貸募集中の部屋が1件掲載されています。 気になった方はお気軽にお問合わせください。
エアドアは管理会社が直接掲載・毎日更新なので
最新物件・おとり物件なし
特徴ヴォーガコルテ多摩川
外観
エントランス
内観
外観全13枚
エントランス
部屋設備家賃7.6万円
管理費8,000円
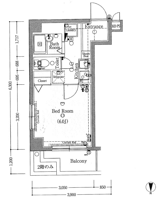
601号室 /1K /20.3㎡ /北
371,000円〜+初月の日割り家賃・保証会社費用
ご相談・お急ぎの方はこちら
お部屋探しCAFE ヘヤギメ!川崎店仲介認定パートナー
営業時間:10:00~18:00定休日: 水曜日(1月・2月・3月無休)、年末年始
ご相談・お急ぎの方はこちら
お部屋探しCAFE ヘヤギメ!川崎店仲介認定パートナー
営業時間:10:00~18:00定休日: 水曜日(1月・2月・3月無休)、年末年始
この部屋の特徴・設備