外観
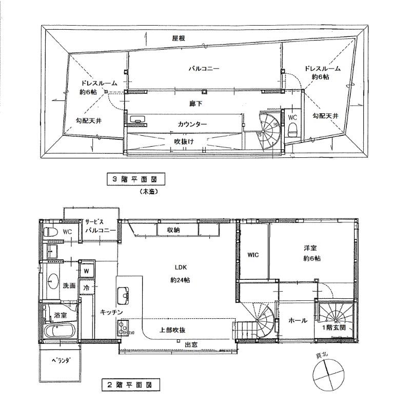
Arubu Shimokitazawaは世田谷区北沢にある築16年(2009年7月築)の3階建木造一戸建て。 最寄り駅の小田急小田原線「下北沢」駅徒歩5分。京王井の頭線「池ノ上」駅徒歩6分です。 間取りは現在3LDKをご用意しております。 室内設備はバルコニー・床暖房・室内洗濯機置場・エアコン付きがあり充実した設備環境です。 現在エアドアに賃貸募集中の部屋が1件掲載されています。 気になった方はお気軽にお問合わせください。
Arubu Shimokitazawaは世田谷区北沢にある築16年(2009年7月築)の3階建木造一戸建て。 最寄り駅の小田急小田原線「下北沢」駅徒歩5分。京王井の頭線「池ノ上」駅徒歩6分です。 間取りは現在3LDKをご用意しております。 室内設備はバルコニー・床暖房・室内洗濯機置場・エアコン付きがあり充実した設備環境です。 現在エアドアに賃貸募集中の部屋が1件掲載されています。 気になった方はお気軽にお問合わせください。
エアドアは管理会社が直接掲載・毎日更新なので
最新物件・おとり物件なし
特徴Arubu Shimokitazawa
外観
リビング
外観全7枚
キッチン
キッチン家賃49万円
管理費0円
3LDK /132.49㎡ /南西
キャンセル待ちが可能な場合がございます。
ご興味のある方は、まずはお問い合わせください。
初期トクとは初期費用のおトク度を表したスコアです。
例えば
「仲介手数料」と「礼金」のどちらかが0円なら
「仲介手数料」と「礼金」の両方が0円なら
さらに「フリーレント1ヶ月」があれば
最もおトクなお部屋は として評価されます。
1,572,500円〜+初月の日割り家賃・保証会社費用
キャンセル待ちが可能な場合がございます。
ご興味のある方は、まずはお問い合わせください。
ご相談・お急ぎの方はこちら
株式会社ONE REDいい部屋ネット 三軒茶屋店仲介認定パートナー
営業時間:10:00〜18:00定休日: 水曜日
ご相談・お急ぎの方はこちら
株式会社ONE REDいい部屋ネット 三軒茶屋店仲介認定パートナー
営業時間:10:00〜18:00定休日: 水曜日
この部屋の特徴・設備
有り
1台分無料(駐車スペースやや狭いため、駐車可否は要確認)