外観
クリオ ラモード木場公園は江東区木場にある築1年(2024年12月築)の5階建鉄筋コンクリート造マンション。 最寄り駅の東京メトロ東西線「木場」駅徒歩8分。東京メトロ東西線「門前仲町」駅徒歩15分です。 セキュリティ面では、オートロック・防犯カメラで安心。単身や女性の方にもおすすめです。 間取りは現在1Rをご用意しております。 室内設備はフローリング・オール電化・クローゼット・インターホン・TVモニタ付きドアホン・室内洗濯機置場・エアコン付き・下駄箱があり充実した設備環境です。 敷金なし・礼金なしのお部屋もあり、初期費用を抑えてお得にお引越しが可能。 現在エアドアに賃貸募集中の部屋が1件掲載されています。 気になった方はお気軽にお問合わせください。
クリオ ラモード木場公園は江東区木場にある築1年(2024年12月築)の5階建鉄筋コンクリート造マンション。 最寄り駅の東京メトロ東西線「木場」駅徒歩8分。東京メトロ東西線「門前仲町」駅徒歩15分です。 セキュリティ面では、オートロック・防犯カメラで安心。単身や女性の方にもおすすめです。 間取りは現在1Rをご用意しております。 室内設備はフローリング・オール電化・クローゼット・インターホン・TVモニタ付きドアホン・室内洗濯機置場・エアコン付き・下駄箱があり充実した設備環境です。 敷金なし・礼金なしのお部屋もあり、初期費用を抑えてお得にお引越しが可能。 現在エアドアに賃貸募集中の部屋が1件掲載されています。 気になった方はお気軽にお問合わせください。
エアドアは管理会社が直接掲載・毎日更新なので
最新物件・おとり物件なし
特徴クリオ ラモード木場公園
外観
エントランス
エントランス
リビング
外観全23枚
リビング
キッチン家賃12.9万円
管理費7,000円
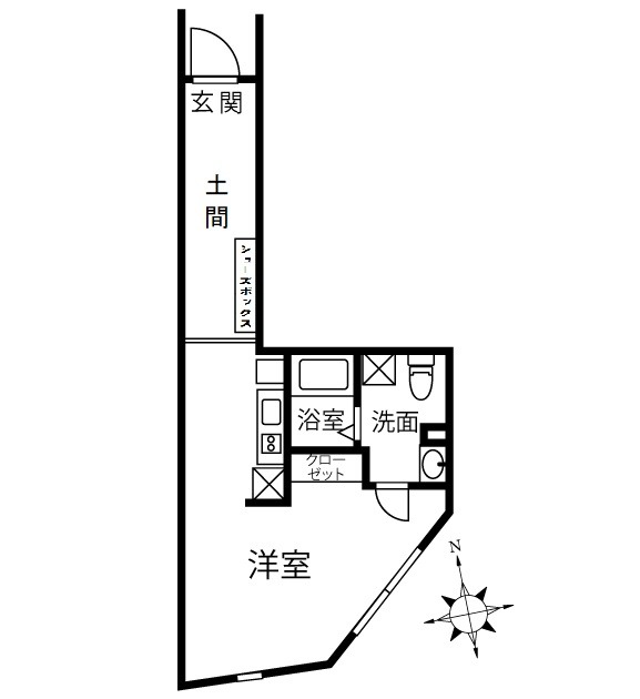
1階 /1R /28.91㎡ /南東
初期トクとは初期費用のおトク度を表したスコアです。
例えば
「仲介手数料」と「礼金」のどちらかが0円なら
「仲介手数料」と「礼金」の両方が0円なら
さらに「フリーレント1ヶ月」があれば
最もおトクなお部屋は として評価されます。
41,500円〜+初月の日割り家賃・保証会社費用
物件の相談・当日の見学希望はこちら
お部屋探しCAFE ヘヤギメ!錦糸町店仲介認定パートナー
営業時間:10:00~18:00定休日: 水曜日(1月・2月・3月無休)、年末年始
物件の相談・当日の見学希望はこちら
お部屋探しCAFE ヘヤギメ!錦糸町店仲介認定パートナー
営業時間:10:00~18:00定休日: 水曜日(1月・2月・3月無休)、年末年始
この部屋の特徴・設備
空きなし