外観
CREAL東十条は北区東十条にある新築(2025年2月築)の5階建鉄筋コンクリート造マンション。 最寄り駅のJR京浜東北・根岸線「東十条」駅徒歩8分。東京メトロ南北線「王子神谷」駅徒歩8分です。 間取りは現在1Kをご用意しております。 室内設備はオール電化・クローゼット・下駄箱・インターホン・TVモニタ付きドアホン・室内洗濯機置場・エアコン付きがあり充実した設備環境です。 敷金なし・礼金なしのお部屋もあり、初期費用を抑えてお得にお引越しが可能。 現在エアドアに賃貸募集中の部屋が1件掲載されています。 気になった方はお気軽にお問合わせください。
CREAL東十条は北区東十条にある新築(2025年2月築)の5階建鉄筋コンクリート造マンション。 最寄り駅のJR京浜東北・根岸線「東十条」駅徒歩8分。東京メトロ南北線「王子神谷」駅徒歩8分です。 間取りは現在1Kをご用意しております。 室内設備はオール電化・クローゼット・下駄箱・インターホン・TVモニタ付きドアホン・室内洗濯機置場・エアコン付きがあり充実した設備環境です。 敷金なし・礼金なしのお部屋もあり、初期費用を抑えてお得にお引越しが可能。 現在エアドアに賃貸募集中の部屋が1件掲載されています。 気になった方はお気軽にお問合わせください。
エアドアは管理会社が直接掲載・毎日更新なので
最新物件・おとり物件なし
特徴CREAL東十条
外観
外観
外観
外観
外観
外観全11枚
部屋その他
部屋その他家賃8.4万円
管理費10,000円
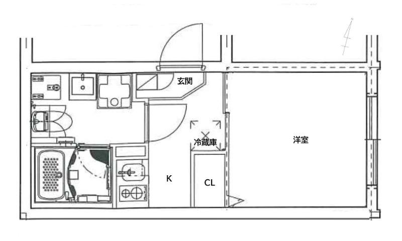
1階 /1K /17.41㎡ /北東
初期トクとは初期費用のおトク度を表したスコアです。
例えば
「仲介手数料」と「礼金」のどちらかが0円なら
「仲介手数料」と「礼金」の両方が0円なら
さらに「フリーレント1ヶ月」があれば
最もおトクなお部屋は として評価されます。
185,500円〜+初月の日割り家賃・保証会社費用
ご相談・お急ぎの方はこちら
お部屋探しCAFE ヘヤギメ!池袋店仲介認定パートナー
営業時間:10:00~18:00定休日: 水曜日(1月・2月・3月無休)、年末年始
ご相談・お急ぎの方はこちら
お部屋探しCAFE ヘヤギメ!池袋店仲介認定パートナー
営業時間:10:00~18:00定休日: 水曜日(1月・2月・3月無休)、年末年始
この部屋の特徴・設備
空きなし