ザハウス中野坂上Ⅱは中野区本町にある築1年(2024年3月築)の4階建鉄筋コンクリート造マンション。 最寄り駅の東京メトロ丸ノ内線「中野新橋」駅徒歩4分。東京メトロ丸ノ内線「中野坂上」駅徒歩10分です。 間取りは現在1LDKをご用意しております。 室内設備はフローリング・クローゼット・インターホン・TVモニタ付きドアホン・室内洗濯機置場・エアコン付きがあり充実した設備環境です。 礼金なしのお部屋もあり、初期費用を抑えてお得にお引越しが可能。 現在エアドアに賃貸募集中の部屋が1件掲載されています。 気になった方はお気軽にお問合わせください。
ザハウス中野坂上Ⅱは中野区本町にある築1年(2024年3月築)の4階建鉄筋コンクリート造マンション。 最寄り駅の東京メトロ丸ノ内線「中野新橋」駅徒歩4分。東京メトロ丸ノ内線「中野坂上」駅徒歩10分です。 間取りは現在1LDKをご用意しております。 室内設備はフローリング・クローゼット・インターホン・TVモニタ付きドアホン・室内洗濯機置場・エアコン付きがあり充実した設備環境です。 礼金なしのお部屋もあり、初期費用を抑えてお得にお引越しが可能。 現在エアドアに賃貸募集中の部屋が1件掲載されています。 気になった方はお気軽にお問合わせください。
エアドアは管理会社が直接掲載・毎日更新なので
最新物件・おとり物件なし

内観
キッチン全14枚
コンロ
お風呂家賃19.8万円
管理費20,000円
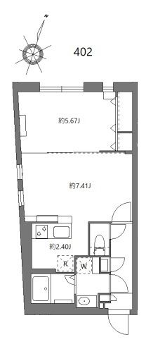
0402号室 /1LDK /37.62㎡ /北
初期トクとは初期費用のおトク度を表したスコアです。
例えば
「仲介手数料」と「礼金」のどちらかが0円なら
「仲介手数料」と「礼金」の両方が0円なら
さらに「フリーレント1ヶ月」があれば
最もおトクなお部屋は として評価されます。
599,900円〜+初月の日割り家賃・保証会社費用
ご相談・お急ぎの方はこちら
お部屋探しCAFE ヘヤギメ!高円寺店仲介認定パートナー
営業時間:10:00~18:00定休日: 水曜日(1月・2月・3月無休)、年末年始
ご相談・お急ぎの方はこちら
お部屋探しCAFE ヘヤギメ!高円寺店仲介認定パートナー
営業時間:10:00~18:00定休日: 水曜日(1月・2月・3月無休)、年末年始
この部屋の特徴・設備
無