外観
ライオンズプラザ亀戸は江東区亀戸にある築43年(1982年11月築)の13階建鉄筋コンクリート造マンション。 最寄り駅のJR総武線「亀戸」駅徒歩5分。 間取りは現在3LDKをご用意しております。 室内設備はバルコニー・下駄箱・室内洗濯機置場・エアコン付きがあり充実した設備環境です。 現在エアドアに賃貸募集中の部屋が1件掲載されています。 気になった方はお気軽にお問合わせください。
ライオンズプラザ亀戸は江東区亀戸にある築43年(1982年11月築)の13階建鉄筋コンクリート造マンション。 最寄り駅のJR総武線「亀戸」駅徒歩5分。 間取りは現在3LDKをご用意しております。 室内設備はバルコニー・下駄箱・室内洗濯機置場・エアコン付きがあり充実した設備環境です。 現在エアドアに賃貸募集中の部屋が1件掲載されています。 気になった方はお気軽にお問合わせください。
エアドアは管理会社が直接掲載・毎日更新なので
最新物件・おとり物件なし
特徴ライオンズプラザ亀戸
外観
周辺
リビング
外観全26枚
玄関
キッチン家賃21万円
管理費10,000円
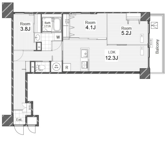
8階 /3LDK /66.02㎡ /南
1,028,600円〜+初月の日割り家賃・保証会社費用
ご相談・お急ぎの方はこちら
株式会社FJネクストレジデンシャル仲介認定パートナー
営業時間:10:00~19:00定休日: 年中無休(年末年始除く)
ご相談・お急ぎの方はこちら
株式会社FJネクストレジデンシャル仲介認定パートナー
営業時間:10:00~19:00定休日: 年中無休(年末年始除く)
この部屋の特徴・設備
-