外観
リアルワン要町は豊島区千早にある新築(2026年1月築)の4階建鉄筋コンクリート造マンション。 最寄り駅の東京メトロ有楽町線「千川」駅徒歩9分。東京メトロ有楽町線「要町」駅徒歩9分です。 セキュリティ面では、オートロック・防犯カメラで安心。単身や女性の方にもおすすめです。 共用設備には、宅配ボックス・駐輪場あり・バイク置場ありがございます。 間取りは現在1K・1Rをご用意しております。 室内設備はフローリング・クローゼット・下駄箱・インターホン・TVモニタ付きドアホン・室内洗濯機置場・エアコン付きがあり充実した設備環境です。 敷金なし・礼金なしのお部屋もあり、初期費用を抑えてお得にお引越しが可能。 現在エアドアに賃貸募集中の部屋が3件掲載されています。 気になった方はお気軽にお問合わせください。
リアルワン要町は豊島区千早にある新築(2026年1月築)の4階建鉄筋コンクリート造マンション。 最寄り駅の東京メトロ有楽町線「千川」駅徒歩9分。東京メトロ有楽町線「要町」駅徒歩9分です。 セキュリティ面では、オートロック・防犯カメラで安心。単身や女性の方にもおすすめです。 共用設備には、宅配ボックス・駐輪場あり・バイク置場ありがございます。 間取りは現在1K・1Rをご用意しております。 室内設備はフローリング・クローゼット・下駄箱・インターホン・TVモニタ付きドアホン・室内洗濯機置場・エアコン付きがあり充実した設備環境です。 敷金なし・礼金なしのお部屋もあり、初期費用を抑えてお得にお引越しが可能。 現在エアドアに賃貸募集中の部屋が3件掲載されています。 気になった方はお気軽にお問合わせください。
エアドアは管理会社が直接掲載・毎日更新なので
最新物件・おとり物件なし

リビング
外観全15枚
キッチン
洗面家賃14万円
管理費20,000円
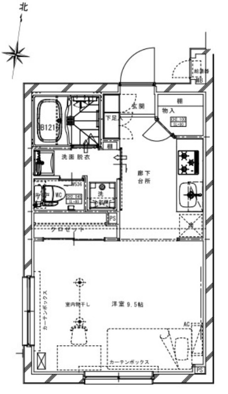
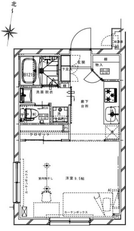
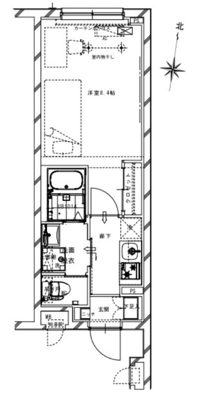
2階 /1R /32.76㎡ /南
初期トクとは初期費用のおトク度を表したスコアです。
例えば
「仲介手数料」と「礼金」のどちらかが0円なら
「仲介手数料」と「礼金」の両方が0円なら
さらに「フリーレント1ヶ月」があれば
最もおトクなお部屋は として評価されます。
約393,150円〜 +初月の日割り家賃・保証会社費用
物件の相談・当日の見学希望はこちら
お部屋探しCAFE ヘヤギメ!池袋店仲介認定パートナー
営業時間:10:00~18:00定休日: 水曜日(1月・2月・3月無休)、年末年始
物件の相談・当日の見学希望はこちら
お部屋探しCAFE ヘヤギメ!池袋店仲介認定パートナー
営業時間:10:00~18:00定休日: 水曜日(1月・2月・3月無休)、年末年始
この部屋の特徴・設備
空きなし