周辺
鴨志田第二ビルは横浜市青葉区奈良にある築28年(1997年2月築)の4階建鉄筋コンクリート造マンション。 最寄り駅の東急こどもの国線「こどもの国」駅徒歩4分。JR横浜線「成瀬」までバス13分 センター前下車徒歩2分です。 間取りは現在2DKをご用意しております。 室内設備はフローリング・ケーブルテレビ・バルコニー・下駄箱・インターホン・TVモニタ付きドアホン・室内洗濯機置場・エアコン付きがあり充実した設備環境です。 現在エアドアに賃貸募集中の部屋が1件掲載されています。 気になった方はお気軽にお問合わせください。
鴨志田第二ビルは横浜市青葉区奈良にある築28年(1997年2月築)の4階建鉄筋コンクリート造マンション。 最寄り駅の東急こどもの国線「こどもの国」駅徒歩4分。JR横浜線「成瀬」までバス13分 センター前下車徒歩2分です。 間取りは現在2DKをご用意しております。 室内設備はフローリング・ケーブルテレビ・バルコニー・下駄箱・インターホン・TVモニタ付きドアホン・室内洗濯機置場・エアコン付きがあり充実した設備環境です。 現在エアドアに賃貸募集中の部屋が1件掲載されています。 気になった方はお気軽にお問合わせください。
エアドアは管理会社が直接掲載・毎日更新なので
最新物件・おとり物件なし

リビング
部屋その他全23枚
部屋その他
部屋その他家賃7.8万円
管理費5,000円
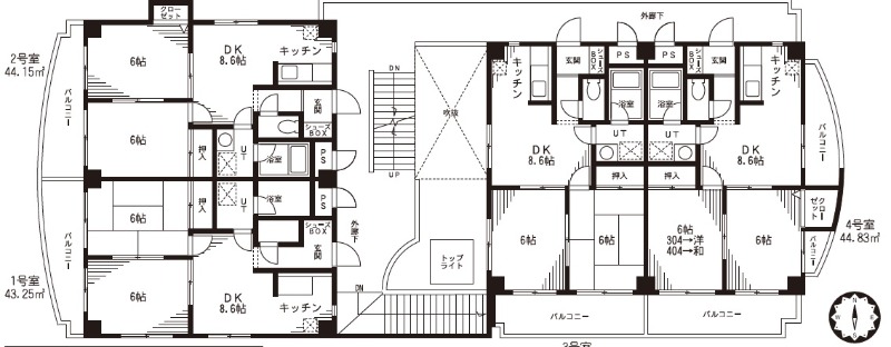
3階 /2DK /43.25㎡ /西
357,050円〜+初月の日割り家賃・保証会社費用
物件の相談・当日の見学希望はこちら
株式会社アンビション・バロー横浜店仲介認定パートナー
営業時間:10:00-18:30定休日: 毎週水曜日(1月~3月を除く)
物件の相談・当日の見学希望はこちら
株式会社アンビション・バロー横浜店仲介認定パートナー
営業時間:10:00-18:30定休日: 毎週水曜日(1月~3月を除く)
この部屋の特徴・設備
有り8,800円
※使用注意・制限あり、車庫証明対応不可区画
特徴鴨志田第二ビル
周辺
周辺
周辺
周辺
周辺
周辺
周辺
周辺