外観
ファーストクラス横濱第2は横浜市南区永田南にある築18年(2007年12月築)の7階建鉄筋コンクリート造マンション。 最寄り駅の京急本線「弘明寺」駅徒歩5分。京急本線「井土ヶ谷」駅徒歩12分です。 共用設備には、エレベーター・宅配ボックス・駐輪場ありがございます。 間取りは現在1LDKをご用意しております。 室内設備はフローリング・バルコニー・クローゼット・下駄箱・インターホン・TVモニタ付きドアホン・室内洗濯機置場・エアコン付きがあり充実した設備環境です。 敷金なしのお部屋もあり、初期費用を抑えてお得にお引越しが可能。 現在エアドアに賃貸募集中の部屋が1件掲載されています。 気になった方はお気軽にお問合わせください。
ファーストクラス横濱第2は横浜市南区永田南にある築18年(2007年12月築)の7階建鉄筋コンクリート造マンション。 最寄り駅の京急本線「弘明寺」駅徒歩5分。京急本線「井土ヶ谷」駅徒歩12分です。 共用設備には、エレベーター・宅配ボックス・駐輪場ありがございます。 間取りは現在1LDKをご用意しております。 室内設備はフローリング・バルコニー・クローゼット・下駄箱・インターホン・TVモニタ付きドアホン・室内洗濯機置場・エアコン付きがあり充実した設備環境です。 敷金なしのお部屋もあり、初期費用を抑えてお得にお引越しが可能。 現在エアドアに賃貸募集中の部屋が1件掲載されています。 気になった方はお気軽にお問合わせください。
エアドアは管理会社が直接掲載・毎日更新なので
最新物件・おとり物件なし
特徴ファーストクラス横濱第2
外観
外観
内観全17枚
キッチン
お風呂家賃9.2万円
管理費10,000円
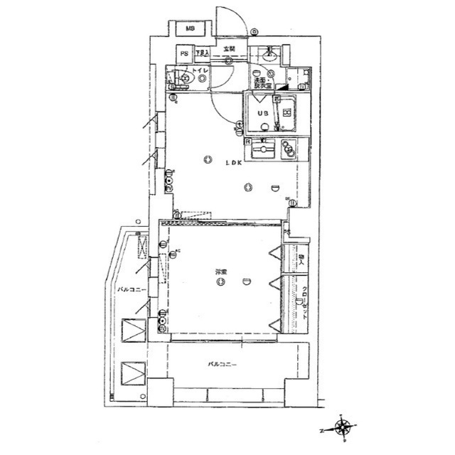
506号室 /1LDK /35.41㎡ /西
384,800円〜+初月の日割り家賃・保証会社費用
物件の相談・当日の見学希望はこちら
株式会社アンビション・バロー横浜店仲介認定パートナー
営業時間:10:00-18:30定休日: 毎週水曜日(1月~3月を除く)
物件の相談・当日の見学希望はこちら
株式会社アンビション・バロー横浜店仲介認定パートナー
営業時間:10:00-18:30定休日: 毎週水曜日(1月~3月を除く)
この部屋の特徴・設備
-