外観
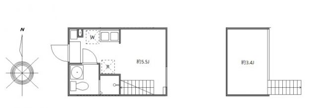
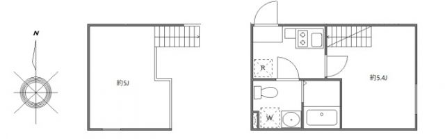
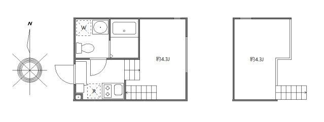
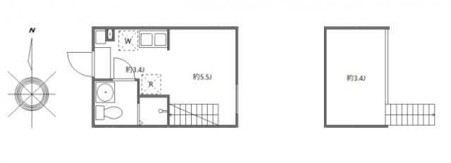
テラス祖師ヶ谷大蔵は世田谷区祖師谷にある新築(2026年2月築)の2階建木造アパート。 最寄り駅の小田急小田原線「祖師ヶ谷大蔵」駅徒歩10分。小田急小田原線「成城学園前」駅徒歩14分です。 間取りは現在1Rをご用意しております。 室内設備はフローリング・下駄箱・室内洗濯機置場・エアコン付きがあり充実した設備環境です。 敷金なしのお部屋もあり、初期費用を抑えてお得にお引越しが可能。 現在エアドアに賃貸募集中の部屋が9件掲載されています。 気になった方はお気軽にお問合わせください。
テラス祖師ヶ谷大蔵は世田谷区祖師谷にある新築(2026年2月築)の2階建木造アパート。 最寄り駅の小田急小田原線「祖師ヶ谷大蔵」駅徒歩10分。小田急小田原線「成城学園前」駅徒歩14分です。 間取りは現在1Rをご用意しております。 室内設備はフローリング・下駄箱・室内洗濯機置場・エアコン付きがあり充実した設備環境です。 敷金なしのお部屋もあり、初期費用を抑えてお得にお引越しが可能。 現在エアドアに賃貸募集中の部屋が9件掲載されています。 気になった方はお気軽にお問合わせください。
エアドアは管理会社が直接掲載・毎日更新なので
最新物件・おとり物件なし

リビング
外観全20枚
キッチン
洗面家賃7.7万円
管理費4,000円
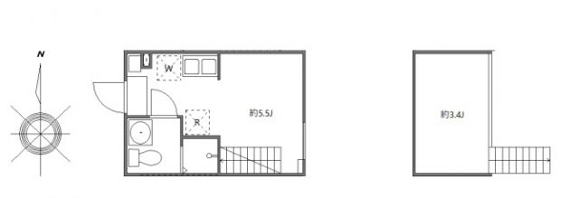
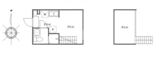
0202号室 /1R /12.68㎡ /東
キャンセル待ちが可能な場合がございます。
ご興味のある方は、まずはお問い合わせください。
約299,150円〜 +初月の日割り家賃・保証会社費用
キャンセル待ちが可能な場合がございます。
ご興味のある方は、まずはお問い合わせください。
物件の相談・当日の見学希望はこちら
お部屋探しCAFE ヘヤギメ!下北沢店仲介認定パートナー
営業時間:10:00~18:00定休日: 水曜日(1月・2月・3月無休)、年末年始
物件の相談・当日の見学希望はこちら
お部屋探しCAFE ヘヤギメ!下北沢店仲介認定パートナー
営業時間:10:00~18:00定休日: 水曜日(1月・2月・3月無休)、年末年始
この部屋の特徴・設備
無