メゾンエトワールは北区上中里にある築27年(1998年9月築)の2階建木造アパート。 最寄り駅のJR京浜東北・根岸線「上中里」駅徒歩4分。都電荒川線「梶原」駅徒歩8分です。 間取りは現在1Kをご用意しております。 室内設備はバルコニー・クローゼット・洗濯機置場ありがあり充実した設備環境です。 現在エアドアに賃貸募集中の部屋が1件掲載されています。 気になった方はお気軽にお問合わせください。
メゾンエトワールは北区上中里にある築27年(1998年9月築)の2階建木造アパート。 最寄り駅のJR京浜東北・根岸線「上中里」駅徒歩4分。都電荒川線「梶原」駅徒歩8分です。 間取りは現在1Kをご用意しております。 室内設備はバルコニー・クローゼット・洗濯機置場ありがあり充実した設備環境です。 現在エアドアに賃貸募集中の部屋が1件掲載されています。 気になった方はお気軽にお問合わせください。
エアドアは管理会社が直接掲載・毎日更新なので
最新物件・おとり物件なし

バルコニー
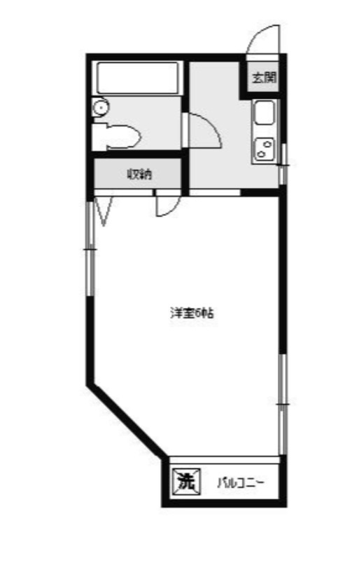
収納家賃6万円
管理費5,000円
2階 /1K /16.62㎡ /南
初期トクとは初期費用のおトク度を表したスコアです。
例えば
「仲介手数料」と「礼金」のどちらかが0円なら
「仲介手数料」と「礼金」の両方が0円なら
さらに「フリーレント1ヶ月」があれば
最もおトクなお部屋は として評価されます。
約257,800円〜 +初月の日割り家賃・保証会社費用
物件の相談・当日の見学希望はこちら
お部屋探しCAFE ヘヤギメ!池袋店仲介認定パートナー
営業時間:10:00~18:00定休日: 水曜日(1月・2月・3月無休)、年末年始
物件の相談・当日の見学希望はこちら
お部屋探しCAFE ヘヤギメ!池袋店仲介認定パートナー
営業時間:10:00~18:00定休日: 水曜日(1月・2月・3月無休)、年末年始
この部屋の特徴・設備
空きなし