外観
メイクスデザイン板橋本町Ⅱは板橋区双葉町にある築10年(2015年12月築)の7階建鉄筋コンクリート造マンション。 最寄り駅の都営三田線「板橋本町」駅徒歩9分。東武東上線「中板橋」駅徒歩9分です。 セキュリティ面では、オートロック・防犯カメラで安心。単身や女性の方にもおすすめです。 共用設備には、エレベーター・宅配ボックスがございます。 間取りは現在1Kをご用意しております。 室内設備はバルコニー・クローゼット・室内洗濯機置場・エアコン付きがあり充実した設備環境です。 現在エアドアに賃貸募集中の部屋が1件掲載されています。 気になった方はお気軽にお問合わせください。
メイクスデザイン板橋本町Ⅱは板橋区双葉町にある築10年(2015年12月築)の7階建鉄筋コンクリート造マンション。 最寄り駅の都営三田線「板橋本町」駅徒歩9分。東武東上線「中板橋」駅徒歩9分です。 セキュリティ面では、オートロック・防犯カメラで安心。単身や女性の方にもおすすめです。 共用設備には、エレベーター・宅配ボックスがございます。 間取りは現在1Kをご用意しております。 室内設備はバルコニー・クローゼット・室内洗濯機置場・エアコン付きがあり充実した設備環境です。 現在エアドアに賃貸募集中の部屋が1件掲載されています。 気になった方はお気軽にお問合わせください。
エアドアは管理会社が直接掲載・毎日更新なので
最新物件・おとり物件なし

リビング
外観全13枚
リビング
キッチン家賃8.8万円
管理費12,000円
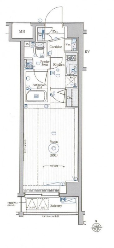
3階 /1K /25.95㎡ /南
約483,000円〜 +初月の日割り家賃・保証会社費用
物件の相談・当日の見学希望はこちら
お部屋探しCAFE ヘヤギメ!池袋店仲介認定パートナー
営業時間:10:00~18:00定休日: 水曜日(1月・2月・3月無休)、年末年始
物件の相談・当日の見学希望はこちら
お部屋探しCAFE ヘヤギメ!池袋店仲介認定パートナー
営業時間:10:00~18:00定休日: 水曜日(1月・2月・3月無休)、年末年始
この部屋の特徴・設備
空きなし
特徴メイクスデザイン板橋本町Ⅱ
外観