外観
クレッセント多摩川Ⅱは大田区新蒲田にある築24年(2002年3月築)の6階建鉄筋コンクリート造マンション。 最寄り駅の東急多摩川線「矢口渡」駅徒歩11分。東急池上線「蓮沼」駅徒歩13分です。 セキュリティ面では、オートロック・管理人有り・防犯カメラで安心。単身や女性の方にもおすすめです。 共用設備には、エレベーター・宅配ボックス・駐輪場あり・バイク置場あり・24時間ゴミ出し可がございます。 間取りは現在3LDKをご用意しております。 室内設備はフローリング・ケーブルテレビ・バルコニー・床暖房・クローゼット・下駄箱・CSアンテナ・BSアンテナ・インターホン・TVモニタ付きドアホン・室内洗濯機置場があり充実した設備環境です。 現在エアドアに賃貸募集中の部屋が1件掲載されています。 気になった方はお気軽にお問合わせください。
クレッセント多摩川Ⅱは大田区新蒲田にある築24年(2002年3月築)の6階建鉄筋コンクリート造マンション。 最寄り駅の東急多摩川線「矢口渡」駅徒歩11分。東急池上線「蓮沼」駅徒歩13分です。 セキュリティ面では、オートロック・管理人有り・防犯カメラで安心。単身や女性の方にもおすすめです。 共用設備には、エレベーター・宅配ボックス・駐輪場あり・バイク置場あり・24時間ゴミ出し可がございます。 間取りは現在3LDKをご用意しております。 室内設備はフローリング・ケーブルテレビ・バルコニー・床暖房・クローゼット・下駄箱・CSアンテナ・BSアンテナ・インターホン・TVモニタ付きドアホン・室内洗濯機置場があり充実した設備環境です。 現在エアドアに賃貸募集中の部屋が1件掲載されています。 気になった方はお気軽にお問合わせください。
エアドアは管理会社が直接掲載・毎日更新なので
最新物件・おとり物件なし
特徴クレッセント多摩川Ⅱ
外観
外観
外観
外観
外観
外観
外観
外観
エントランス
外観
部屋その他全14枚
部屋その他
部屋その他家賃18.8万円
管理費10,000円
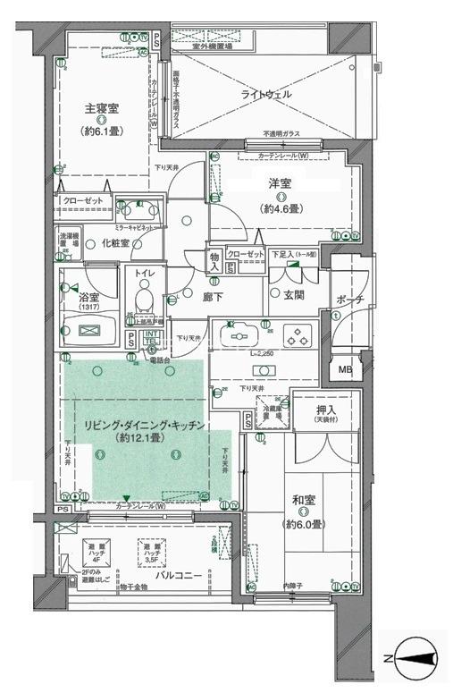
5階 /3LDK /63.42㎡ /西
初期費用概算
物件の相談・当日の見学希望はこちら
株式会社ヴィダックス五反田店仲介認定パートナー
営業時間:10:00~18:30定休日: 水曜定休/年末年始は除く
物件の相談・当日の見学希望はこちら
株式会社ヴィダックス五反田店仲介認定パートナー
営業時間:10:00~18:30定休日: 水曜定休/年末年始は除く
この部屋の特徴・設備
空きなし