外観
リヴシティ横濱新川町弐番館は横浜市南区新川町にある築6年(2019年9月築)の11階建鉄筋コンクリート造マンション。 最寄り駅の横浜市営地下鉄ブルーライン「吉野町」駅徒歩4分。京急本線「南太田」駅徒歩8分です。 セキュリティ面では、オートロック・防犯カメラで安心。単身や女性の方にもおすすめです。 共用設備には、エレベーター・宅配ボックス・駐輪場あり・24時間ゴミ出し可がございます。 間取りは現在1K・1DK・1LDKをご用意しております。 室内設備はフローリング・バルコニー・クローゼット・下駄箱・CSアンテナ・BSアンテナ・インターホン・TVモニタ付きドアホン・室内洗濯機置場・エアコン付きがあり充実した設備環境です。 敷金なし・礼金なしのお部屋もあり、初期費用を抑えてお得にお引越しが可能。 現在エアドアに賃貸募集中の部屋が3件掲載されています。 気になった方はお気軽にお問合わせください。
リヴシティ横濱新川町弐番館は横浜市南区新川町にある築6年(2019年9月築)の11階建鉄筋コンクリート造マンション。 最寄り駅の横浜市営地下鉄ブルーライン「吉野町」駅徒歩4分。京急本線「南太田」駅徒歩8分です。 セキュリティ面では、オートロック・防犯カメラで安心。単身や女性の方にもおすすめです。 共用設備には、エレベーター・宅配ボックス・駐輪場あり・24時間ゴミ出し可がございます。 間取りは現在1K・1DK・1LDKをご用意しております。 室内設備はフローリング・バルコニー・クローゼット・下駄箱・CSアンテナ・BSアンテナ・インターホン・TVモニタ付きドアホン・室内洗濯機置場・エアコン付きがあり充実した設備環境です。 敷金なし・礼金なしのお部屋もあり、初期費用を抑えてお得にお引越しが可能。 現在エアドアに賃貸募集中の部屋が3件掲載されています。 気になった方はお気軽にお問合わせください。
エアドアは管理会社が直接掲載・毎日更新なので
最新物件・おとり物件なし
特徴リヴシティ横濱新川町弐番館
外観
エントランスこの建物に3件の募集中のお部屋情報があります

外観
部屋その他全20枚
部屋その他
エントランス家賃10.5万円
管理費15,000円
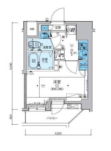
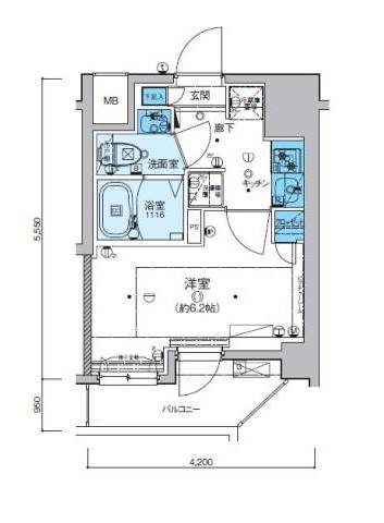
7階 /1DK /31.91㎡ /南東
キャンセル待ちが可能な場合がございます。
ご興味のある方は、まずはお問い合わせください。
406,500円〜+初月の日割り家賃・保証会社費用
キャンセル待ちが可能な場合がございます。
ご興味のある方は、まずはお問い合わせください。
ご相談・お急ぎの方はこちら
株式会社アンビション・バロー横浜店仲介認定パートナー
営業時間:10:00-18:30定休日: 毎週水曜日(1月~3月を除く)
ご相談・お急ぎの方はこちら
株式会社アンビション・バロー横浜店仲介認定パートナー
営業時間:10:00-18:30定休日: 毎週水曜日(1月~3月を除く)
この部屋の特徴・設備
空きなし