外観
SYFORME KOMAZAWA-DAIGAKUは世田谷区駒沢にある築13年(2012年11月築)の15階建鉄筋コンクリート造マンション。 最寄り駅の東急田園都市線「駒沢大学」駅徒歩8分。東急田園都市線「桜新町」駅徒歩12分です。 セキュリティ面では、オートロック・防犯カメラで安心。単身や女性の方にもおすすめです。 共用設備には、エレベーター・宅配ボックスがございます。 間取りは現在1Kをご用意しております。 室内設備は室内洗濯機置場・エアコン付き・フローリング・ケーブルテレビ・バルコニー・クローゼット・下駄箱・CSアンテナ・BSアンテナ・インターホン・TVモニタ付きドアホンがあり充実した設備環境です。 敷金なしのお部屋もあり、初期費用を抑えてお得にお引越しが可能。 現在エアドアに賃貸募集中の部屋が1件掲載されています。 気になった方はお気軽にお問合わせください。
SYFORME KOMAZAWA-DAIGAKUは世田谷区駒沢にある築13年(2012年11月築)の15階建鉄筋コンクリート造マンション。 最寄り駅の東急田園都市線「駒沢大学」駅徒歩8分。東急田園都市線「桜新町」駅徒歩12分です。 セキュリティ面では、オートロック・防犯カメラで安心。単身や女性の方にもおすすめです。 共用設備には、エレベーター・宅配ボックスがございます。 間取りは現在1Kをご用意しております。 室内設備は室内洗濯機置場・エアコン付き・フローリング・ケーブルテレビ・バルコニー・クローゼット・下駄箱・CSアンテナ・BSアンテナ・インターホン・TVモニタ付きドアホンがあり充実した設備環境です。 敷金なしのお部屋もあり、初期費用を抑えてお得にお引越しが可能。 現在エアドアに賃貸募集中の部屋が1件掲載されています。 気になった方はお気軽にお問合わせください。
エアドアは管理会社が直接掲載・毎日更新なので
最新物件・おとり物件なし
特徴SYFORME KOMAZAWA-DAIGAKU
外観
エントランス
内観
部屋その他全13枚
エントランス
洗面家賃10.7万円
管理費8,000円
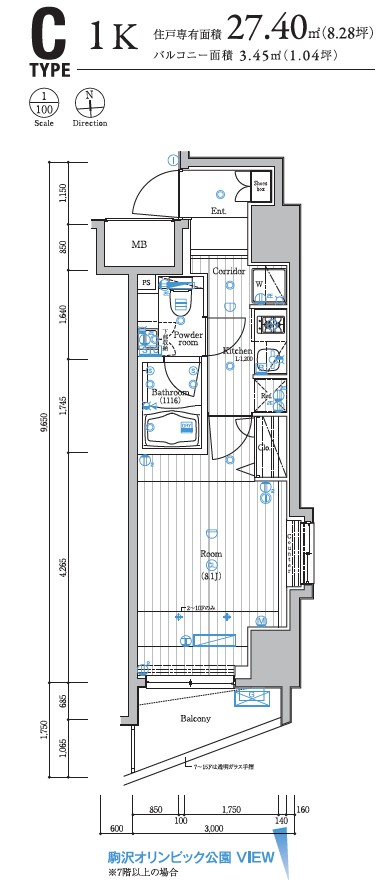
1003号室 /1K /27.4㎡ /南
キャンセル待ちが可能な場合がございます。
ご興味のある方は、まずはお問い合わせください。
489,000円〜+初月の日割り家賃・保証会社費用
キャンセル待ちが可能な場合がございます。
ご興味のある方は、まずはお問い合わせください。
ご相談・お急ぎの方はこちら
お部屋探しCAFE ヘヤギメ!下北沢店仲介認定パートナー
営業時間:10:00~18:00定休日: null
ご相談・お急ぎの方はこちら
お部屋探しCAFE ヘヤギメ!下北沢店仲介認定パートナー
営業時間:10:00~18:00定休日: null
この部屋の特徴・設備