外観
浅草タワーは台東区西浅草にある築14年(2012年2月築)の37階建鉄筋コンクリート造タワーマンション。 最寄り駅のつくばエクスプレス「浅草」駅徒歩5分。東京メトロ銀座線「田原町」駅徒歩11分です。 セキュリティ面では、オートロック・防犯カメラで安心。単身や女性の方にもおすすめです。 共用設備には、エレベーター・宅配ボックスがございます。 間取りは現在1SLDK・1R・2SLDK・3LDK・1LDK・2LDKをご用意しております。 室内設備はフローリング・ケーブルテレビ・バルコニー・床暖房・室内洗濯機置場・エアコン付き・クローゼット・下駄箱・インターホン・TVモニタ付きドアホン・CSアンテナ・BSアンテナがあり充実した設備環境です。 現在エアドアに賃貸募集中の部屋が1件掲載されています。 気になった方はお気軽にお問合わせください。
浅草タワーは台東区西浅草にある築14年(2012年2月築)の37階建鉄筋コンクリート造タワーマンション。 最寄り駅のつくばエクスプレス「浅草」駅徒歩5分。東京メトロ銀座線「田原町」駅徒歩11分です。 セキュリティ面では、オートロック・防犯カメラで安心。単身や女性の方にもおすすめです。 共用設備には、エレベーター・宅配ボックスがございます。 間取りは現在1SLDK・1R・2SLDK・3LDK・1LDK・2LDKをご用意しております。 室内設備はフローリング・ケーブルテレビ・バルコニー・床暖房・室内洗濯機置場・エアコン付き・クローゼット・下駄箱・インターホン・TVモニタ付きドアホン・CSアンテナ・BSアンテナがあり充実した設備環境です。 現在エアドアに賃貸募集中の部屋が1件掲載されています。 気になった方はお気軽にお問合わせください。
エアドアは管理会社が直接掲載・毎日更新なので
最新物件・おとり物件なし
特徴浅草タワー
外観
外観
エントランス
エントランス
リビング
外観全30枚
リビング
キッチン家賃32万円
管理費20,000円
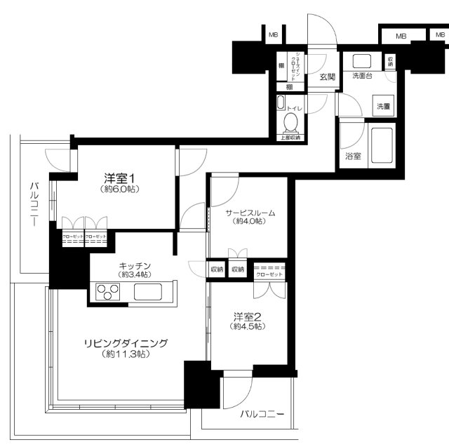
23階 /2LDK /55.95㎡ /東
約1,355,760円〜 +初月の日割り家賃・保証会社費用
物件の相談・当日の見学希望はこちら
株式会社CreaVision飯田橋店仲介認定パートナー
営業時間:9:00~18:00定休日: 水曜日、年末年始
物件の相談・当日の見学希望はこちら
株式会社CreaVision飯田橋店仲介認定パートナー
営業時間:9:00~18:00定休日: 水曜日、年末年始
この部屋の特徴・設備
空きなし