外観
下落合グリーンパークは新宿区上落合にある築56年(1969年11月築)の11階建鉄筋鉄骨コンクリート造マンション。 最寄り駅の西武新宿線「下落合」駅徒歩1分。西武新宿線「中井」駅徒歩10分です。 間取りは現在1K・2K・1LDKをご用意しております。 室内設備はフローリング・バルコニー・インターホン・TVモニタ付きドアホン・室内洗濯機置場・エアコン付きがあり充実した設備環境です。 現在エアドアに賃貸募集中の部屋が1件掲載されています。 気になった方はお気軽にお問合わせください。
下落合グリーンパークは新宿区上落合にある築56年(1969年11月築)の11階建鉄筋鉄骨コンクリート造マンション。 最寄り駅の西武新宿線「下落合」駅徒歩1分。西武新宿線「中井」駅徒歩10分です。 間取りは現在1K・2K・1LDKをご用意しております。 室内設備はフローリング・バルコニー・インターホン・TVモニタ付きドアホン・室内洗濯機置場・エアコン付きがあり充実した設備環境です。 現在エアドアに賃貸募集中の部屋が1件掲載されています。 気になった方はお気軽にお問合わせください。
エアドアは管理会社が直接掲載・毎日更新なので
最新物件・おとり物件なし
特徴下落合グリーンパーク
外観
外観
周辺
周辺
内観
外観全22枚
内観
内観家賃8.9万円
管理費10,000円
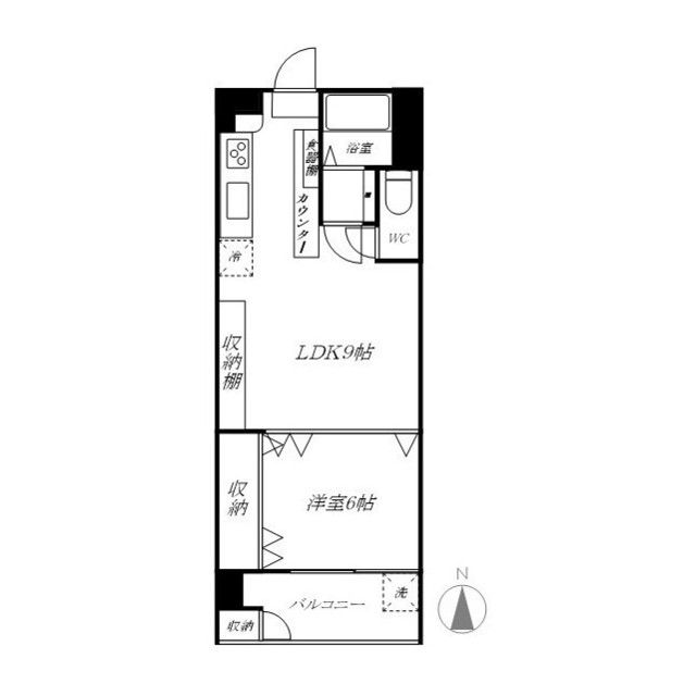
605号室 /1LDK /30㎡ /南
初期費用概算
物件の相談・当日の見学希望はこちら
株式会社ネハヤス不動産アパマンショップ池袋東口店(株)ネハヤス不動産仲介認定パートナー
営業時間:10時~18時30分定休日: 水曜日(GW休業:5/4〜5/6)
物件の相談・当日の見学希望はこちら
株式会社ネハヤス不動産アパマンショップ池袋東口店(株)ネハヤス不動産仲介認定パートナー
営業時間:10時~18時30分定休日: 水曜日(GW休業:5/4〜5/6)
この部屋の特徴・設備
-