外観
ARTESSIMO LAVIは墨田区緑にある築9年(2016年4月築)の14階建鉄筋コンクリート造マンション。 最寄り駅の都営大江戸線「両国」駅徒歩3分。JR総武線「両国」駅徒歩9分です。 セキュリティ面では、オートロック・防犯カメラで安心。単身や女性の方にもおすすめです。 共用設備には、エレベーター・宅配ボックスがございます。 間取りは現在1K・1Rをご用意しております。 室内設備はバルコニー・下駄箱・室内洗濯機置場・エアコン付き・クローゼットがあり充実した設備環境です。 現在エアドアに賃貸募集中の部屋が1件掲載されています。 気になった方はお気軽にお問合わせください。
ARTESSIMO LAVIは墨田区緑にある築9年(2016年4月築)の14階建鉄筋コンクリート造マンション。 最寄り駅の都営大江戸線「両国」駅徒歩3分。JR総武線「両国」駅徒歩9分です。 セキュリティ面では、オートロック・防犯カメラで安心。単身や女性の方にもおすすめです。 共用設備には、エレベーター・宅配ボックスがございます。 間取りは現在1K・1Rをご用意しております。 室内設備はバルコニー・下駄箱・室内洗濯機置場・エアコン付き・クローゼットがあり充実した設備環境です。 現在エアドアに賃貸募集中の部屋が1件掲載されています。 気になった方はお気軽にお問合わせください。
エアドアは管理会社が直接掲載・毎日更新なので
最新物件・おとり物件なし
特徴ARTESSIMO LAVI
外観
エントランス
エントランス
周辺
周辺
周辺
周辺
周辺
リビング
外観全16枚
玄関
キッチン家賃8.9万円
管理費12,000円
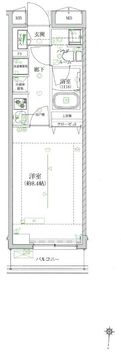
2階 /1K /25.38㎡ /北
キャンセル待ちが可能な場合がございます。
ご興味のある方は、まずはお問い合わせください。
479,400円〜+初月の日割り家賃・保証会社費用
キャンセル待ちが可能な場合がございます。
ご興味のある方は、まずはお問い合わせください。
ご相談・お急ぎの方はこちら
お部屋探しCAFE ヘヤギメ!錦糸町店仲介認定パートナー
営業時間:10:00~18:00定休日: 水曜日(1月・2月・3月無休)、年末年始
ご相談・お急ぎの方はこちら
お部屋探しCAFE ヘヤギメ!錦糸町店仲介認定パートナー
営業時間:10:00~18:00定休日: 水曜日(1月・2月・3月無休)、年末年始
この部屋の特徴・設備
空きなし