外観
PREMIUM CUBE 不動前DEUXは品川区小山にある築13年(2012年4月築)の5階建鉄筋コンクリート造マンション。 最寄り駅の東急目黒線「不動前」駅徒歩6分。東急目黒線「武蔵小山」駅徒歩9分です。 セキュリティ面では、オートロック・防犯カメラで安心。単身や女性の方にもおすすめです。 共用設備には、エレベーター・宅配ボックス・駐輪場ありがございます。 間取りは現在1K・1LDKをご用意しております。 室内設備はフローリング・バルコニー・BSアンテナ・室内洗濯機置場・エアコン付き・クローゼットがあり充実した設備環境です。 敷金なしのお部屋もあり、初期費用を抑えてお得にお引越しが可能。 現在エアドアに賃貸募集中の部屋が2件掲載されています。 気になった方はお気軽にお問合わせください。
PREMIUM CUBE 不動前DEUXは品川区小山にある築13年(2012年4月築)の5階建鉄筋コンクリート造マンション。 最寄り駅の東急目黒線「不動前」駅徒歩6分。東急目黒線「武蔵小山」駅徒歩9分です。 セキュリティ面では、オートロック・防犯カメラで安心。単身や女性の方にもおすすめです。 共用設備には、エレベーター・宅配ボックス・駐輪場ありがございます。 間取りは現在1K・1LDKをご用意しております。 室内設備はフローリング・バルコニー・BSアンテナ・室内洗濯機置場・エアコン付き・クローゼットがあり充実した設備環境です。 敷金なしのお部屋もあり、初期費用を抑えてお得にお引越しが可能。 現在エアドアに賃貸募集中の部屋が2件掲載されています。 気になった方はお気軽にお問合わせください。
エアドアは管理会社が直接掲載・毎日更新なので
最新物件・おとり物件なし

内観
外観全13枚
内観
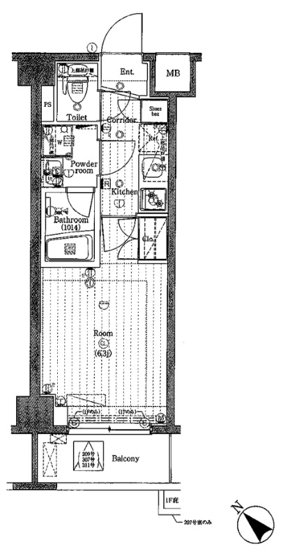
内観家賃11.1万円
管理費12,000円
4階 /1K /21.09㎡ /南西
キャンセル待ちが可能な場合がございます。
ご興味のある方は、まずはお問い合わせください。
約541,000円〜 +初月の日割り家賃・保証会社費用
キャンセル待ちが可能な場合がございます。
ご興味のある方は、まずはお問い合わせください。
物件の相談・当日の見学希望はこちら
お部屋探しCAFE ヘヤギメ!目黒店仲介認定パートナー
営業時間:10:00~18:00定休日: 水曜日(1月・2月・3月無休)、年末年始
物件の相談・当日の見学希望はこちら
お部屋探しCAFE ヘヤギメ!目黒店仲介認定パートナー
営業時間:10:00~18:00定休日: 水曜日(1月・2月・3月無休)、年末年始
この部屋の特徴・設備