外観
ザ・レジデンス神楽坂Ⅰは新宿区西五軒町にある築7年(2018年10月築)の9階建鉄筋コンクリート造マンション。 最寄り駅の東京メトロ東西線「神楽坂」駅徒歩5分。東京メトロ有楽町線「江戸川橋」駅徒歩8分です。 セキュリティ面では、オートロック・防犯カメラで安心。単身や女性の方にもおすすめです。 共用設備には、エレベーター・宅配ボックス・駐輪場あり・バイク置場ありがございます。 間取りは現在1LDK・1Kをご用意しております。 室内設備はフローリング・ケーブルテレビ・バルコニー・CSアンテナ・BSアンテナ・インターホン・TVモニタ付きドアホン・室内洗濯機置場・エアコン付きがあり充実した設備環境です。 敷金なし・礼金なしのお部屋もあり、初期費用を抑えてお得にお引越しが可能。 現在エアドアに賃貸募集中の部屋が3件掲載されています。 気になった方はお気軽にお問合わせください。
ザ・レジデンス神楽坂Ⅰは新宿区西五軒町にある築7年(2018年10月築)の9階建鉄筋コンクリート造マンション。 最寄り駅の東京メトロ東西線「神楽坂」駅徒歩5分。東京メトロ有楽町線「江戸川橋」駅徒歩8分です。 セキュリティ面では、オートロック・防犯カメラで安心。単身や女性の方にもおすすめです。 共用設備には、エレベーター・宅配ボックス・駐輪場あり・バイク置場ありがございます。 間取りは現在1LDK・1Kをご用意しております。 室内設備はフローリング・ケーブルテレビ・バルコニー・CSアンテナ・BSアンテナ・インターホン・TVモニタ付きドアホン・室内洗濯機置場・エアコン付きがあり充実した設備環境です。 敷金なし・礼金なしのお部屋もあり、初期費用を抑えてお得にお引越しが可能。 現在エアドアに賃貸募集中の部屋が3件掲載されています。 気になった方はお気軽にお問合わせください。
エアドアは管理会社が直接掲載・毎日更新なので
最新物件・おとり物件なし

外観
部屋その他全10枚
部屋その他
部屋その他家賃13.3万円
管理費15,000円
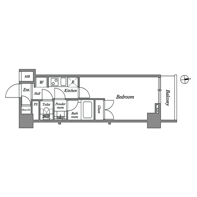
0504号室 /1K /25㎡ /北
キャンセル待ちが可能な場合がございます。
ご興味のある方は、まずはお問い合わせください。
初期トクとは初期費用のおトク度を表したスコアです。
例えば
「仲介手数料」と「礼金」のどちらかが0円なら
「仲介手数料」と「礼金」の両方が0円なら
さらに「フリーレント1ヶ月」があれば
最もおトクなお部屋は として評価されます。
166,000円〜+初月の日割り家賃・保証会社費用
キャンセル待ちが可能な場合がございます。
ご興味のある方は、まずはお問い合わせください。
ご相談・お急ぎの方はこちら
株式会社アセットナビ本社仲介認定パートナー
営業時間:10:00~19:00定休日: 第2・3水曜日(1月~3月は除く)
ご相談・お急ぎの方はこちら
株式会社アセットナビ本社仲介認定パートナー
営業時間:10:00~19:00定休日: 第2・3水曜日(1月~3月は除く)
この部屋の特徴・設備
-