外観
プロスタイルウェルス下井草は杉並区井草にある築1年(2024年12月築)の4階建鉄筋コンクリート造マンション。 最寄り駅の西武新宿線「下井草」駅徒歩7分。西武新宿線「井荻」駅徒歩9分です。 セキュリティ面では、オートロック・防犯カメラで安心。単身や女性の方にもおすすめです。 間取りは現在1LDKをご用意しております。 室内設備はフローリング・バルコニー・クローゼット・下駄箱・インターホン・TVモニタ付きドアホン・室内洗濯機置場・エアコン付きがあり充実した設備環境です。 敷金なし・礼金なしのお部屋もあり、初期費用を抑えてお得にお引越しが可能。 現在エアドアに賃貸募集中の部屋が1件掲載されています。 気になった方はお気軽にお問合わせください。
プロスタイルウェルス下井草は杉並区井草にある築1年(2024年12月築)の4階建鉄筋コンクリート造マンション。 最寄り駅の西武新宿線「下井草」駅徒歩7分。西武新宿線「井荻」駅徒歩9分です。 セキュリティ面では、オートロック・防犯カメラで安心。単身や女性の方にもおすすめです。 間取りは現在1LDKをご用意しております。 室内設備はフローリング・バルコニー・クローゼット・下駄箱・インターホン・TVモニタ付きドアホン・室内洗濯機置場・エアコン付きがあり充実した設備環境です。 敷金なし・礼金なしのお部屋もあり、初期費用を抑えてお得にお引越しが可能。 現在エアドアに賃貸募集中の部屋が1件掲載されています。 気になった方はお気軽にお問合わせください。
エアドアは管理会社が直接掲載・毎日更新なので
最新物件・おとり物件なし
特徴プロスタイルウェルス下井草
外観
リビング
外観全12枚
キッチン
洗面家賃13.2万円
管理費10,000円
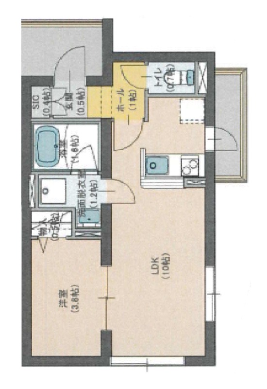
4階 /1LDK /30.8㎡ /-
初期トクとは初期費用のおトク度を表したスコアです。
例えば
「仲介手数料」と「礼金」のどちらかが0円なら
「仲介手数料」と「礼金」の両方が0円なら
さらに「フリーレント1ヶ月」があれば
最もおトクなお部屋は として評価されます。
290,500円〜+初月の日割り家賃・保証会社費用
ご相談・お急ぎの方はこちら
お部屋探しCAFE ヘヤギメ!高円寺店仲介認定パートナー
営業時間:10:00~18:00定休日: 水曜日(1月・2月・3月無休)、年末年始
ご相談・お急ぎの方はこちら
お部屋探しCAFE ヘヤギメ!高円寺店仲介認定パートナー
営業時間:10:00~18:00定休日: 水曜日(1月・2月・3月無休)、年末年始
この部屋の特徴・設備
空きなし