外観
クレイシアIDZ本所吾妻橋は墨田区本所にある築3年(2023年3月築)の9階建鉄筋コンクリート造マンション。 最寄り駅の都営浅草線「本所吾妻橋」駅徒歩7分。東武伊勢崎線「とうきょうスカイツリー」駅徒歩11分です。 セキュリティ面では、オートロック・防犯カメラで安心。単身や女性の方にもおすすめです。 共用設備には、エレベーター・宅配ボックスがございます。 間取りは現在1DKをご用意しております。 室内設備はバルコニー・クローゼット・室内洗濯機置場・エアコン付きがあり充実した設備環境です。 現在エアドアに賃貸募集中の部屋が1件掲載されています。 気になった方はお気軽にお問合わせください。
クレイシアIDZ本所吾妻橋は墨田区本所にある築3年(2023年3月築)の9階建鉄筋コンクリート造マンション。 最寄り駅の都営浅草線「本所吾妻橋」駅徒歩7分。東武伊勢崎線「とうきょうスカイツリー」駅徒歩11分です。 セキュリティ面では、オートロック・防犯カメラで安心。単身や女性の方にもおすすめです。 共用設備には、エレベーター・宅配ボックスがございます。 間取りは現在1DKをご用意しております。 室内設備はバルコニー・クローゼット・室内洗濯機置場・エアコン付きがあり充実した設備環境です。 現在エアドアに賃貸募集中の部屋が1件掲載されています。 気になった方はお気軽にお問合わせください。
エアドアは管理会社が直接掲載・毎日更新なので
最新物件・おとり物件なし

リビング
外観全13枚
リビング
キッチン家賃9.55万円
管理費12,000円
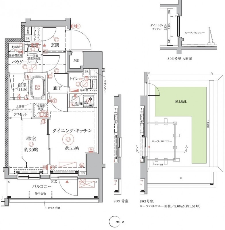
5階 /1DK /25.76㎡ /東
キャンセル待ちが可能な場合がございます。
ご興味のある方は、まずはお問い合わせください。
約479,100円〜 +初月の日割り家賃・保証会社費用
キャンセル待ちが可能な場合がございます。
ご興味のある方は、まずはお問い合わせください。
物件の相談・当日の見学希望はこちら
お部屋探しCAFE ヘヤギメ!錦糸町店仲介認定パートナー
営業時間:10:00~18:00定休日: 水曜日(1月・2月・3月無休)、年末年始
物件の相談・当日の見学希望はこちら
お部屋探しCAFE ヘヤギメ!錦糸町店仲介認定パートナー
営業時間:10:00~18:00定休日: 水曜日(1月・2月・3月無休)、年末年始
この部屋の特徴・設備
空きなし
特徴クレイシアIDZ本所吾妻橋
外観
外観
外観