外観
CREATIF押上は墨田区向島にある新築(2025年12月築)の12階建鉄筋コンクリート造マンション。 最寄り駅の東京メトロ半蔵門線「押上」駅徒歩8分。東武伊勢崎線「とうきょうスカイツリー」駅徒歩9分です。 共用設備には、エレベーター・宅配ボックス・駐輪場ありがございます。 間取りは現在2DK・1DKをご用意しております。 室内設備はフローリング・バルコニー・BSアンテナ・室内洗濯機置場・エアコン付きがあり充実した設備環境です。 敷金なし・礼金なしのお部屋もあり、初期費用を抑えてお得にお引越しが可能。 現在エアドアに賃貸募集中の部屋が15件掲載されています。 気になった方はお気軽にお問合わせください。
CREATIF押上は墨田区向島にある新築(2025年12月築)の12階建鉄筋コンクリート造マンション。 最寄り駅の東京メトロ半蔵門線「押上」駅徒歩8分。東武伊勢崎線「とうきょうスカイツリー」駅徒歩9分です。 共用設備には、エレベーター・宅配ボックス・駐輪場ありがございます。 間取りは現在2DK・1DKをご用意しております。 室内設備はフローリング・バルコニー・BSアンテナ・室内洗濯機置場・エアコン付きがあり充実した設備環境です。 敷金なし・礼金なしのお部屋もあり、初期費用を抑えてお得にお引越しが可能。 現在エアドアに賃貸募集中の部屋が15件掲載されています。 気になった方はお気軽にお問合わせください。
エアドアは管理会社が直接掲載・毎日更新なので
最新物件・おとり物件なし

内観
外観全15枚
内観
内観家賃18.7万円
管理費20,000円
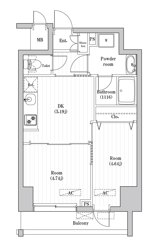
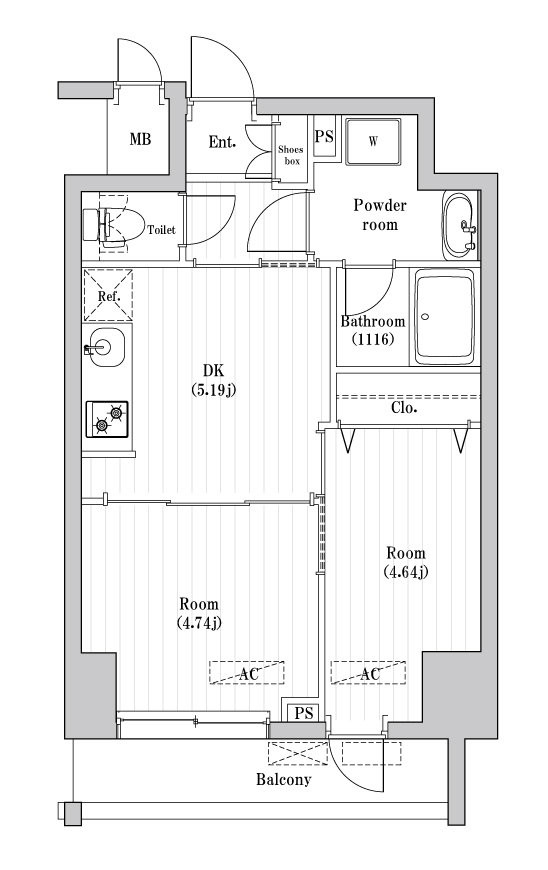
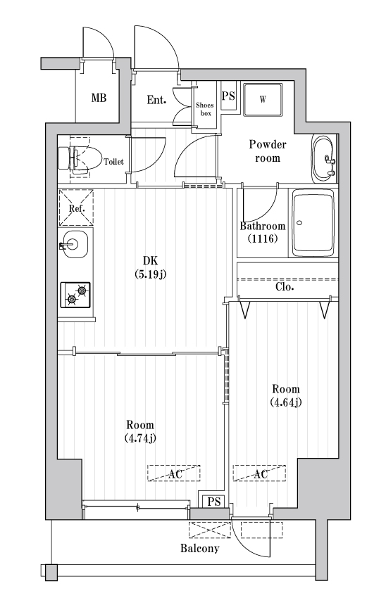
10階 /1DK /35.73㎡ /-
初期トクとは初期費用のおトク度を表したスコアです。
例えば
「仲介手数料」と「礼金」のどちらかが0円なら
「仲介手数料」と「礼金」の両方が0円なら
さらに「フリーレント1ヶ月」があれば
最もおトクなお部屋は として評価されます。
約232,000円〜 +初月の日割り家賃・保証会社費用
物件の相談・当日の見学希望はこちら
株式会社アンビション・エージェンシー恵比寿本店仲介認定パートナー
営業時間:10:00~18:30定休日: 年末年始
物件の相談・当日の見学希望はこちら
株式会社アンビション・エージェンシー恵比寿本店仲介認定パートナー
営業時間:10:00~18:30定休日: 年末年始
この部屋の特徴・設備