外観
GENOVIA大山は板橋区大山金井町にある新築(2025年12月築)の5階建鉄筋コンクリート造マンション。 最寄り駅の東武東上線「大山」駅徒歩7分。都営三田線「板橋区役所前」駅徒歩12分です。 共用設備には、宅配ボックス・24時間ゴミ出し可がございます。 間取りは現在1DK・1R・1SDKをご用意しております。 室内設備はフローリング・クローゼット・CSアンテナ・BSアンテナ・室内洗濯機置場・エアコン付きがあり充実した設備環境です。 敷金なし・礼金なしのお部屋もあり、初期費用を抑えてお得にお引越しが可能。 現在エアドアに賃貸募集中の部屋が4件掲載されています。 気になった方はお気軽にお問合わせください。
GENOVIA大山は板橋区大山金井町にある新築(2025年12月築)の5階建鉄筋コンクリート造マンション。 最寄り駅の東武東上線「大山」駅徒歩7分。都営三田線「板橋区役所前」駅徒歩12分です。 共用設備には、宅配ボックス・24時間ゴミ出し可がございます。 間取りは現在1DK・1R・1SDKをご用意しております。 室内設備はフローリング・クローゼット・CSアンテナ・BSアンテナ・室内洗濯機置場・エアコン付きがあり充実した設備環境です。 敷金なし・礼金なしのお部屋もあり、初期費用を抑えてお得にお引越しが可能。 現在エアドアに賃貸募集中の部屋が4件掲載されています。 気になった方はお気軽にお問合わせください。
エアドアは管理会社が直接掲載・毎日更新なので
最新物件・おとり物件なし

リビング
外観全18枚
リビング
キッチン家賃13.8万円
管理費15,000円
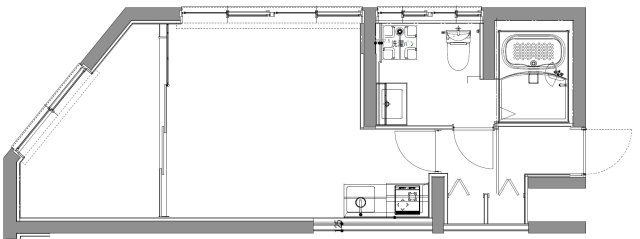
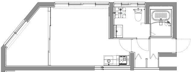
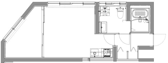
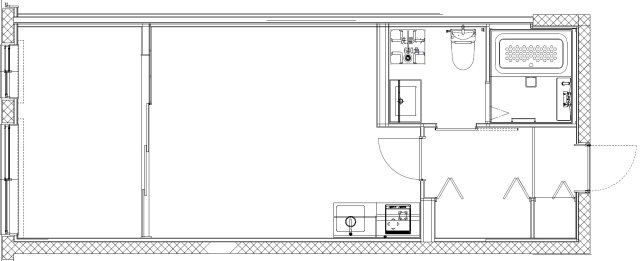
0101号室 /1DK /35.01㎡ /西
初期トクとは初期費用のおトク度を表したスコアです。
例えば
「仲介手数料」と「礼金」のどちらかが0円なら
「仲介手数料」と「礼金」の両方が0円なら
さらに「フリーレント1ヶ月」があれば
最もおトクなお部屋は として評価されます。
約257,300円〜 +初月の日割り家賃・保証会社費用
物件の相談・当日の見学希望はこちら
お部屋探しCAFE ヘヤギメ!池袋店仲介認定パートナー
営業時間:10:00~18:00定休日: 水曜日(1月・2月・3月無休)、年末年始
物件の相談・当日の見学希望はこちら
お部屋探しCAFE ヘヤギメ!池袋店仲介認定パートナー
営業時間:10:00~18:00定休日: 水曜日(1月・2月・3月無休)、年末年始
この部屋の特徴・設備
-