外観
プレール・ドゥーク大島PARK SIDEは江東区北砂にある築18年(2007年11月築)の8階建鉄筋コンクリート造マンション。 最寄り駅の都営新宿線「大島」駅徒歩11分。都営新宿線「東大島」駅徒歩17分です。 セキュリティ面では、オートロック・防犯カメラで安心。単身や女性の方にもおすすめです。 共用設備には、エレベーター・宅配ボックス・駐輪場ありがございます。 間取りは現在1Kをご用意しております。 室内設備はフローリング・ケーブルテレビ・バルコニー・CSアンテナ・BSアンテナ・インターホン・TVモニタ付きドアホン・室内洗濯機置場・エアコン付きがあり充実した設備環境です。 敷金なしのお部屋もあり、初期費用を抑えてお得にお引越しが可能。 現在エアドアに賃貸募集中の部屋が1件掲載されています。 気になった方はお気軽にお問合わせください。
プレール・ドゥーク大島PARK SIDEは江東区北砂にある築18年(2007年11月築)の8階建鉄筋コンクリート造マンション。 最寄り駅の都営新宿線「大島」駅徒歩11分。都営新宿線「東大島」駅徒歩17分です。 セキュリティ面では、オートロック・防犯カメラで安心。単身や女性の方にもおすすめです。 共用設備には、エレベーター・宅配ボックス・駐輪場ありがございます。 間取りは現在1Kをご用意しております。 室内設備はフローリング・ケーブルテレビ・バルコニー・CSアンテナ・BSアンテナ・インターホン・TVモニタ付きドアホン・室内洗濯機置場・エアコン付きがあり充実した設備環境です。 敷金なしのお部屋もあり、初期費用を抑えてお得にお引越しが可能。 現在エアドアに賃貸募集中の部屋が1件掲載されています。 気になった方はお気軽にお問合わせください。
エアドアは管理会社が直接掲載・毎日更新なので
最新物件・おとり物件なし
特徴プレール・ドゥーク大島PARK SIDE
外観
外観
外観
外観
外観
リビング
外観全22枚
リビング
キッチン家賃8.1万円
管理費8,000円
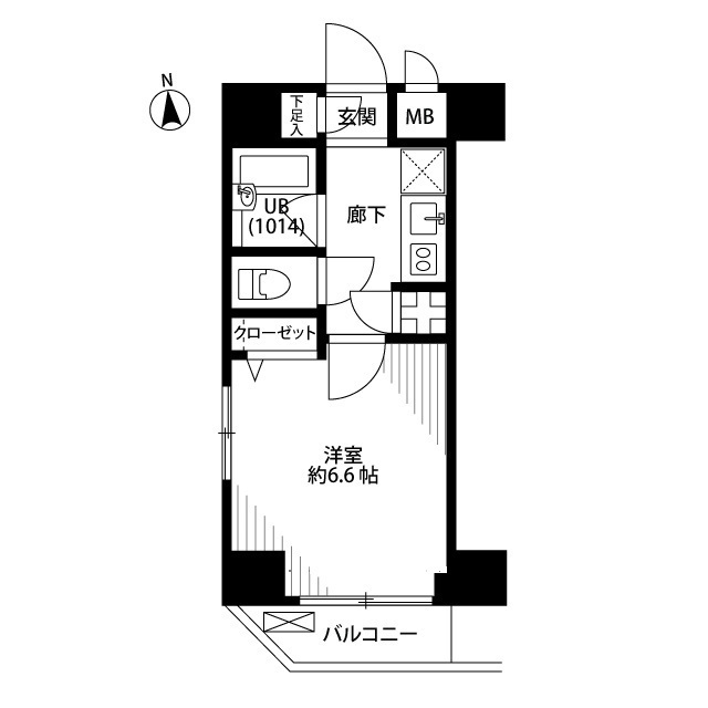
801号室 /1K /21.35㎡ /南
260,530円〜+初月の日割り家賃・保証会社費用
ご相談・お急ぎの方はこちら
お部屋探しCAFE ヘヤギメ!錦糸町店仲介認定パートナー
営業時間:10:00~18:00定休日: 水曜日(1月・2月・3月無休)、年末年始
ご相談・お急ぎの方はこちら
お部屋探しCAFE ヘヤギメ!錦糸町店仲介認定パートナー
営業時間:10:00~18:00定休日: 水曜日(1月・2月・3月無休)、年末年始
この部屋の特徴・設備
空きなし22,000円