外観
インプルーブ大塚は豊島区北大塚にある築36年(1990年3月築)の8階建鉄筋コンクリート造マンション。 最寄り駅のJR山手線「大塚」駅徒歩5分。都電荒川線「巣鴨新田」駅徒歩5分です。 セキュリティ面では、オートロック・防犯カメラで安心。単身や女性の方にもおすすめです。 共用設備には、エレベーター・宅配ボックスがございます。 間取りは現在1LDK・2LDK・2SLDK・1Kをご用意しております。 室内設備は室内洗濯機置場・エアコン付き・ケーブルテレビ・バルコニー・インターホン・TVモニタ付きドアホンがあり充実した設備環境です。 礼金なし・敷金なしのお部屋もあり、初期費用を抑えてお得にお引越しが可能。 現在エアドアに賃貸募集中の部屋が3件掲載されています。 気になった方はお気軽にお問合わせください。
インプルーブ大塚は豊島区北大塚にある築36年(1990年3月築)の8階建鉄筋コンクリート造マンション。 最寄り駅のJR山手線「大塚」駅徒歩5分。都電荒川線「巣鴨新田」駅徒歩5分です。 セキュリティ面では、オートロック・防犯カメラで安心。単身や女性の方にもおすすめです。 共用設備には、エレベーター・宅配ボックスがございます。 間取りは現在1LDK・2LDK・2SLDK・1Kをご用意しております。 室内設備は室内洗濯機置場・エアコン付き・ケーブルテレビ・バルコニー・インターホン・TVモニタ付きドアホンがあり充実した設備環境です。 礼金なし・敷金なしのお部屋もあり、初期費用を抑えてお得にお引越しが可能。 現在エアドアに賃貸募集中の部屋が3件掲載されています。 気になった方はお気軽にお問合わせください。
エアドアは管理会社が直接掲載・毎日更新なので
最新物件・おとり物件なし

リビング
外観全22枚
キッチン
洗面家賃22.5万円
管理費10,000円
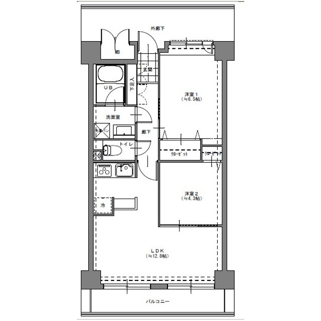
0504号室 /2LDK /50.93㎡ /-
初期トクとは初期費用のおトク度を表したスコアです。
例えば
「仲介手数料」と「礼金」のどちらかが0円なら
「仲介手数料」と「礼金」の両方が0円なら
さらに「フリーレント1ヶ月」があれば
最もおトクなお部屋は として評価されます。
約257,000円〜 +初月の日割り家賃・保証会社費用
物件の相談・当日の見学希望はこちら
お部屋探しCAFE ヘヤギメ!池袋店仲介認定パートナー
営業時間:10:00~18:00定休日: 水曜日(1月・2月・3月無休)、年末年始
物件の相談・当日の見学希望はこちら
お部屋探しCAFE ヘヤギメ!池袋店仲介認定パートナー
営業時間:10:00~18:00定休日: 水曜日(1月・2月・3月無休)、年末年始
この部屋の特徴・設備
-