狙ったお部屋は逃さない
ダイレクト賃貸検索のエアドア

路線・駅から探す

エリアから探す

エアドアなら おとり物件なしで安心のお部屋探し
レジディア北新宿3階 外観
レジディア北新宿3階 エントランス

外観

レジディア北新宿3階 外観
レジディア北新宿3階 エントランス

このお部屋について

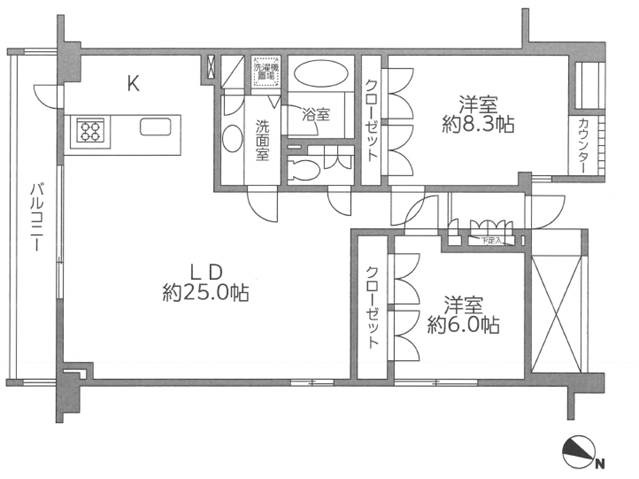
レジディア北新宿は新宿区北新宿にある築28年(1997年4月築)の5階建鉄筋コンクリート造マンション。 最寄り駅のJR総武線「大久保」駅徒歩7分。東京メトロ丸ノ内線「西新宿」駅徒歩11分です。 現在エアドアに賃貸募集中の部屋が1件掲載されています。 気になった方はお気軽にお問合わせください。 お部屋は2LDK、広さは83.56㎡。2人暮らし、ファミリーにお勧めの間取りです。リビングの他に2部屋あり、部屋ごとに多様な使い方が可能です。 礼金なし・仲介手数料無料で、初期費用の負担を軽減し、新生活をスムーズにスタートさせることができます。 基本設備のバストイレ別・洗面所独立・エアコン・コンロ2口以上完備で安心。 キッチンはシステムキッチン・コンロ2口以上あり。満足いくキッチン環境が整っています。 忙しい方に人気の宅配ボックス・追焚付き・浴室乾燥機設備もあり、快適な生活をサポートします。 人気条件のペット相談可のお部屋です。 セキュリティ面はオートロック・防犯カメラで安心。単身や女性の方にもおすすめです。

レジディア北新宿3階

3階 / 2LDK / 83.56㎡ / 南東
東京都 新宿区 北新宿1丁目30-32Mapをみる

掲載が終了したか、成約済みになった可能性がございます。
同じ建物の別のお部屋は以下をご覧ください。

  • 物件詳細
  • MAP

部屋の概要

レジディア北新宿は新宿区北新宿にある築28年(1997年4月築)の5階建鉄筋コンクリート造マンション。 最寄り駅のJR総武線「大久保」駅徒歩7分。東京メトロ丸ノ内線「西新宿」駅徒歩11分です。 現在エアドアに賃貸募集中の部屋が1件掲載されています。 気になった方はお気軽にお問合わせください。 お部屋は2LDK、広さは83.56㎡。2人暮らし、ファミリーにお勧めの間取りです。リビングの他に2部屋あり、部屋ごとに多様な使い方が可能です。 礼金なし・仲介手数料無料で、初期費用の負担を軽減し、新生活をスムーズにスタートさせることができます。 基本設備のバストイレ別・洗面所独立・エアコン・コンロ2口以上完備で安心。 キッチンはシステムキッチン・コンロ2口以上あり。満足いくキッチン環境が整っています。 忙しい方に人気の宅配ボックス・追焚付き・浴室乾燥機設備もあり、快適な生活をサポートします。 人気条件のペット相談可のお部屋です。 セキュリティ面はオートロック・防犯カメラで安心。単身や女性の方にもおすすめです。

部屋の特徴・設備

  • 宅配ボックス
  • オートロック
  • 独立洗面台
  • バストイレ別
  • コンロ2口以上
  • エアコン付き
  • 浴室乾燥機
  • 室内
    洗濯機置場
  • 温水洗浄便座
  • ペット相談可
キッチン・バス・トイレ
システムキッチン、給湯、バス・トイレ別、洗面所独立、追焚付き、浴室乾燥機、温水洗浄便座
セキュリティ
オートロック、防犯カメラ
室内設備
インターホン、TVモニタ付きドアホン、室内洗濯機置場、エアコン付き
共用部
エレベーター、宅配ボックス、駐輪場あり
駐車場

有り44,000円

管理番号: es-05468

建物情報

物件名
レジディア北新宿
(レジディアキタシンジュク)
所在階/階数
3階/5階建
向き
南東
物件種別
マンション
建物構造
鉄筋コンクリート
築年数
1997年4月(築28年)
エアドアアプリアイコン

エアドア アプリなら!

PUSH通知一次情報

人気の物件も先取り!

エアドアアプリなら

「プッシュ通知」×「一次情報」で

人気物件も先取り!

エアドアアプリアイコン

エアドアは

エアドアは接客品質の向上に努めております

チェックマークを付けている女性のピクトグラム
  • 黄色のチェックマークしつこい電話なし
  • 黄色のチェックマーク強引な営業なし
  • 黄色のチェックマークお客様目線の対応

物件のご対応に問題がある場合は問題を報告するからご連絡ください。