路線・駅から探す

エリアから探す

  • お気に入り
  • 保存条件
×
マイページ
  • お気に入り
  • 閲覧履歴
  • 保存した条件

路線・駅から探す

エリアから探す

物件名から探す

メニュー
  • TOP
  • すべての物件
  • エアドアについて
  • よくある質問
  • お問い合わせ
  • アンケートに協力
  • 運営会社
  • 公式Instagram
  • 公式X

都道府県を選択

  • 東京都
  • 神奈川県
  • 千葉県
  • 埼玉県
×
エアドア
  • エアドアについて
  • すべての建物一覧
  • ブログ
  • よくある質問
  • お問い合わせ
  • 仲介パートナーに関する相談
  • アンケートに協力
  • 運営会社
  • 利用規約
  • プライバシーポリシー
  • エアドア-instagram
  • エアドア-X
© airdoor, Inc. All Rights Reserved.

都道府県を選択

  • 東京都
  • 神奈川県
  • 千葉県
  • 埼玉県
×
  • ダイレクト賃貸検索のエアドア
  • 東京都
  • 東京23区
  • 板橋区
  • ときわ台駅
  • robot home ときわ台
  • 2階
この物件は 仲介手数料0円

robot home ときわ台 2階

2時間前に最終更新
2時間前に最終更新
2日前公開
robot home ときわ台2階 リビング
robot home ときわ台2階 間取
robot home ときわ台2階 外観
robot home ときわ台2階 リビング
robot home ときわ台2階 キッチン
robot home ときわ台2階 洗面
robot home ときわ台2階 お風呂
robot home ときわ台2階 トイレ
robot home ときわ台2階 リビング
robot home ときわ台2階 内観
robot home ときわ台2階 内観
robot home ときわ台2階 収納
robot home ときわ台2階 玄関
robot home ときわ台2階 部屋設備
robot home ときわ台2階 部屋その他
robot home ときわ台2階 部屋その他
robot home ときわ台2階 部屋その他

主なお部屋の設備

TVモニタ付きドアホン
エアコン付き
室内洗濯機置場
バルコニー
フローリング
クローゼット
下駄箱
インターホン

主な水回りの設備

カウンターキッチン
浴室乾燥機
システムキッチン
温水洗浄便座
都市ガス
バス・トイレ別
洗面所独立
ガスコンロ
給湯

主な建物・共用設備

宅配ボックス
防犯カメラ

この部屋の見学予定日は2026年8月下旬頃です

⏳ 人気エリアや繁忙期は
見学可能になる前に申込が入ることも

あとで検討する場合は

リビング

robot home ときわ台2階 リビング
robot home ときわ台2階 間取
robot home ときわ台2階 外観
robot home ときわ台2階 リビング
robot home ときわ台2階 キッチン
robot home ときわ台2階 洗面
robot home ときわ台2階 お風呂
robot home ときわ台2階 トイレ
robot home ときわ台2階 リビング
robot home ときわ台2階 内観
robot home ときわ台2階 内観
robot home ときわ台2階 収納
robot home ときわ台2階 玄関
robot home ときわ台2階 部屋設備
robot home ときわ台2階 部屋その他
robot home ときわ台2階 部屋その他
robot home ときわ台2階 部屋その他
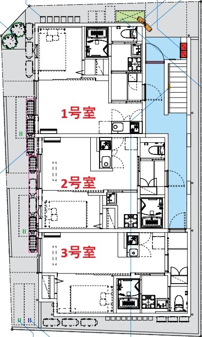
2階 / 1LDK / 29㎡ / 西
東京都 板橋区 常盤台1丁目50Mapをみる

東武東上線 ときわ台駅 徒歩3分

東武東上線 中板橋駅 徒歩8分

都営三田線 板橋本町駅 徒歩19分

間取り図
2日前公開
13.7万円
管理費3,000円
敷無料礼13.7万円
仲無料※エアドア規定価格
法定上限金額 150,700円
2階 / 1LDK / 29㎡ / 西
東京都 板橋区 常盤台1丁目50
東武東上線 ときわ台駅 徒歩3分
東武東上線 中板橋駅 徒歩8分
都営三田線 板橋本町駅 徒歩19分

このお部屋について

robot home ときわ台は板橋区常盤台にある新築(2026年8月築)の3階建木造デザイナーズマンション。 最寄り駅の東武東上線「ときわ台」駅徒歩3分。東武東上線「中板橋」駅徒歩8分です。 現在エアドアに賃貸募集中の部屋が9件掲載されています。 気になった方はお気軽にお問合わせください。 お部屋は1LDK、広さは29㎡。リビングと寝室を分けられるので、生活の切り替えにも便利な間取りです。 敷金なし・仲介手数料無料で、初期費用の負担を軽減し、新生活をスムーズにスタートさせることができます。 基本設備のバストイレ別・洗面所独立・エアコン・コンロ2口以上完備で安心。 キッチンはシステムキッチン・ガスコンロ・コンロ2口以上あり。満足いくキッチン環境が整っています。 忙しい方に人気の宅配ボックス・浴室乾燥機設備もあり、快適な生活をサポートします。 人気条件の角部屋・新築のお部屋です。 こちらのお部屋の入居時期は、2026年9月上旬可能となっております。

家賃13.7万円

管理費3,000円

初期費用概算

初期トク
約378,700円〜 +初月の日割り家賃・保証会社費用
初期費用クレカ決済可
  • 仲介手数料無料※エアドア規定価格
  • 法定上限金額仲介手数料の法定上限金額は、1ヶ月分の家賃に税率を適用して算出されます。法定上限金額150,700円(税込)
    • 敷金無料
    • 礼金13.7万円
    募集中
    申込なし
    2026年9月上旬入居可
    申込状況は、最終更新時のデータを反映しています。
    「申込あり」のお部屋でもキャンセル待ち(審査落ち含む)を受け付けていることがあるため募集中として掲載しております。
    申込なし
    2026年9月上旬入居可

    見学予定日は2026年8月下旬頃です

    ⏳人気エリアや繁忙期は見学可能
    になる前に申込が入ることも

    物件の相談・当日の見学希望はこちら

    電話で問い合わせ
    0078-6018-00024(通話料無料)

    お部屋探しCAFE ヘヤギメ!池袋店仲介認定パートナー

    営業時間:10:00~18:00定休日: 水曜日(1月・2月・3月無休)、年末年始

    • 不要な営業なし
    • 現地集合相談可
    • オンライン重説

    管理会社(情報提供元): 株式会社Robot Home

    物件ID: 636396

    今までのポータルと何がちがうの?

    エアドアはどうしてできたの?

    最新・おとりなしの
    エアドアとは

    2人のピクトグラムとエアドアのロゴ2人のピクトグラムとエアドアのロゴ

    詳しくはこちら

    • 物件詳細
    • MAP
    • 初期費用目安

    アクセス

    東京都 板橋区 常盤台1丁目50

    東武東上線 ときわ台駅 徒歩3分

    東武東上線 中板橋駅 徒歩8分

    都営三田線 板橋本町駅 徒歩19分

    MAP

    部屋の概要

    robot home ときわ台は板橋区常盤台にある新築(2026年8月築)の3階建木造デザイナーズマンション。 最寄り駅の東武東上線「ときわ台」駅徒歩3分。東武東上線「中板橋」駅徒歩8分です。 現在エアドアに賃貸募集中の部屋が9件掲載されています。 気になった方はお気軽にお問合わせください。 お部屋は1LDK、広さは29㎡。リビングと寝室を分けられるので、生活の切り替えにも便利な間取りです。 敷金なし・仲介手数料無料で、初期費用の負担を軽減し、新生活をスムーズにスタートさせることができます。 基本設備のバストイレ別・洗面所独立・エアコン・コンロ2口以上完備で安心。 キッチンはシステムキッチン・ガスコンロ・コンロ2口以上あり。満足いくキッチン環境が整っています。 忙しい方に人気の宅配ボックス・浴室乾燥機設備もあり、快適な生活をサポートします。 人気条件の角部屋・新築のお部屋です。 こちらのお部屋の入居時期は、2026年9月上旬可能となっております。

    部屋の特徴・設備

    • 宅配ボックス
    • オートロック
    • 独立洗面台
    • バストイレ別
    • コンロ2口以上
    • エアコン付き
    • 浴室乾燥機
    • 室内
      洗濯機置場
    • 温水洗浄便座
    • ペット相談可
    キッチン・バス・トイレ
    都市ガス、システムキッチン、給湯、カウンターキッチン、バス・トイレ別、洗面所独立、浴室乾燥機、温水洗浄便座、ガスコンロ
    セキュリティ
    防犯カメラ
    室内設備
    フローリング、バルコニー、クローゼット、下駄箱、インターホン、TVモニタ付きドアホン、室内洗濯機置場、エアコン付き
    共用部
    宅配ボックス
    その他の条件
    デザイナーズ、新築、インターネット接続可、角部屋、2階以上、インターネット無料
    入居条件
    備考
    GTN100%(最低4万円)
    駐車場

    空きなし

    管理番号: 44992

    建物情報

    物件名
    robot home ときわ台
    (ロボットホームトキワダイ)
    所在階/階数
    2階/3階建
    向き
    西
    物件種別
    アパート
    建物構造
    木造
    築年数
    2026年8月(新築)
    取引態様
    媒介
    契約形態
    普通賃貸(24ヶ月)
    保証会社
    株式会社オリコフォレントインシュア 初回契約時:100%、【東京】総賃料の100%(支払手数料2%)
    損保
    必要
    現況
    建設中
    入居可能日
    2026年9月上旬
    情報更新日
    2026年4月1日
    次回更新日
    2026年4月15日

    同じ建物内の他のお部屋

    所在階賃料/管理費仲手/敷金/礼金間取り面積向き入居時期/現況更新日
    間取り2日前公開
    間取り
    1階
    134,000円管理費3,000円
    無料無料13.4万円
    1LDK
    28㎡
    西
    2026年9月上旬/ 建設中
    募集中2時間前更新
    間取り2日前公開
    間取り
    1階
    135,000円管理費3,000円
    無料無料13.5万円
    1LDK
    28.33㎡
    西
    2026年9月上旬/ 建設中
    募集中2時間前更新
    間取り2日前公開
    間取り
    1階
    136,000円管理費3,000円
    無料無料13.6万円
    1LDK
    29㎡
    西
    2026年9月上旬/ 建設中
    募集中2時間前更新
    間取り2日前公開
    間取り
    2階
    135,000円管理費3,000円
    無料無料13.5万円
    1LDK
    28㎡
    西
    2026年9月上旬/ 建設中
    募集中2時間前更新
    間取り2日前公開
    間取り
    2階
    136,000円管理費3,000円
    無料無料13.6万円
    1LDK
    28.33㎡
    西
    2026年9月上旬/ 建設中
    募集中2時間前更新
    間取り2日前公開
    間取り
    3階
    136,000円管理費3,000円
    無料無料13.6万円
    1LDK
    28㎡
    西
    2026年9月上旬/ 建設中
    募集中2時間前更新
    間取り2日前公開
    間取り
    3階
    137,000円管理費3,000円
    無料無料13.7万円
    1LDK
    28.33㎡
    西
    2026年9月上旬/ 建設中
    募集中2時間前更新
    間取り2日前公開
    間取り
    3階
    138,000円管理費3,000円
    無料無料13.8万円
    1LDK
    29㎡
    西
    2026年9月上旬/ 建設中
    募集中2時間前更新
    • 間取り2日前公開

      134,000円 (管理費3,000円)

      敷無料

      礼13.4万円

      仲無料

      1階階 / 1LDK / 28㎡ / 西

      - / 2026年9月上旬

      募集中 2時間前更新

      角部屋

    • 間取り2日前公開

      135,000円 (管理費3,000円)

      敷無料

      礼13.5万円

      仲無料

      1階階 / 1LDK / 28.33㎡ / 西

      - / 2026年9月上旬

      募集中 2時間前更新

    • 間取り2日前公開

      136,000円 (管理費3,000円)

      敷無料

      礼13.6万円

      仲無料

      1階階 / 1LDK / 29㎡ / 西

      - / 2026年9月上旬

      募集中 2時間前更新

      角部屋

    • 間取り2日前公開

      135,000円 (管理費3,000円)

      敷無料

      礼13.5万円

      仲無料

      2階階 / 1LDK / 28㎡ / 西

      - / 2026年9月上旬

      募集中 2時間前更新

      角部屋

    • 間取り2日前公開

      136,000円 (管理費3,000円)

      敷無料

      礼13.6万円

      仲無料

      2階階 / 1LDK / 28.33㎡ / 西

      - / 2026年9月上旬

      募集中 2時間前更新

    • 他の部屋も見る(3件)
    • 間取り2日前公開

      136,000円 (管理費3,000円)

      敷無料

      礼13.6万円

      仲無料

      3階階 / 1LDK / 28㎡ / 西

      - / 2026年9月上旬

      募集中 2時間前更新

      角部屋最上階

    • 間取り2日前公開

      137,000円 (管理費3,000円)

      敷無料

      礼13.7万円

      仲無料

      3階階 / 1LDK / 28.33㎡ / 西

      - / 2026年9月上旬

      募集中 2時間前更新

      最上階

    • 間取り2日前公開

      138,000円 (管理費3,000円)

      敷無料

      礼13.8万円

      仲無料

      3階階 / 1LDK / 29㎡ / 西

      - / 2026年9月上旬

      募集中 2時間前更新

      角部屋最上階

    不動産会社情報

    お部屋探しCAFE ヘヤギメ!池袋店

    東京都豊島区西池袋1-27-1 青山ビル2階

    営業時間:10:00~18:00

    定休日:水曜日(1月・2月・3月無休)、年末年始

    国土交通大臣(4)第7352号

    部屋の管理会社

    株式会社Robot Home東京オフィス

    東京都中央区銀座7-4-15

    初期費用の目安

    合計

    236,000円〜+初月の日割り家賃・保証会社費用・備考

    初期費用クレカ決済可

    内訳

    敷金
    0円
    礼金
    137,000円
    仲介手数料(税込)
    0円
    損害保険料(概算)
    22,000円
    入居者アプリ設定費
    22,000円
    室内清掃費用
    55,000円
    保証会社
    株式会社オリコフォレントインシュア 初回契約時:100%、【東京】総賃料の100%(支払手数料2%)
    備考
    GTN100%(最低4万円)

    月額費用の目安

    月額費用の目安
    142,700円 / 月

    内訳

    家賃
    137,000円
    管理費
    3,000円
    ルムサポ(月額)
    2,700円

    アクセス

    東京都 板橋区 常盤台1丁目50

    東武東上線 ときわ台駅 徒歩3分

    東武東上線 中板橋駅 徒歩8分

    都営三田線 板橋本町駅 徒歩19分

    マップを読み込む

    シェア

    • facebookのロゴ
    • Xのロゴ
    • lineのロゴ
    • メールのアイコン

    関連リンク

    最寄駅から探す
    • ときわ台駅
    • 中板橋駅
    • 板橋本町駅
    最寄りの沿線から探す
    • 東武東上線
    • 東武東上線
    • 都営三田線
    ときわ台駅×お得条件から探す
    • 仲介手数料無料
    • 敷金礼金なし
    • インターネット無料
    • フリーレント
    ときわ台駅×こだわり条件から探す
    • 新築・築浅
    • デザイナーズ
    • タワーマンション
    • 分譲マンション
    • 低層マンション
    • 家具家電付き
    • ペット相談可能
    • 高級賃貸
    • リノベーション
    • 即入居可
    • 外国人・留学生相談可
    ときわ台駅×間取り
    • 一人暮らし
    • 二人暮らし
    • ファミリー向け
    • ワンルーム
    • 1K
    • 1DK
    • 1LDK
    • 2K
    • 2DK
    • 2LDK
    • 3K
    • 3DK
    • 3LDK
    • 4部屋以上
    エアドアアプリアイコン

    エアドア アプリなら!

    PUSH通知一次情報で

    人気の物件も先取り!

    エアドアアプリなら

    「プッシュ通知」×「一次情報」で

    人気物件も先取り!

    エアドアアプリアイコン

    エアドアは

    エアドアは接客品質の向上に努めております

    チェックマークを付けている女性のピクトグラム
    • 黄色のチェックマークしつこい電話なし
    • 黄色のチェックマーク強引な営業なし
    • 黄色のチェックマークお客様目線の対応

    物件のご対応に問題がある場合は問題を報告するからご連絡ください。

    ×
    費用の目安
    robot home ときわ台 2階

    初期費用の目安

    約378,700円〜

    +初月の日割り家賃・保証会社費用

    下記には保証会社・備考など計算に含まれない項目が
    ある場合がございます。初期費用は概算のため、
    詳細はお問い合わせください。

    初期費用クレカ決済可能なお部屋です

    初期費用の内訳

    家賃(翌月分)
    137,000円
    管理費(翌月分)
    3,000円
    敷金
    0円
    礼金
    137,000円
    仲介手数料(税込)
    0円
    損害保険料(概算)
    22,000円
    入居者アプリ設定費
    22,000円
    室内清掃費用
    55,000円
    ルムサポ(月額)(翌月分)
    2,700円
    保証会社
    株式会社オリコフォレントインシュア 初回契約時:100%、【東京】総賃料の100%(支払手数料2%)
    備考
    GTN100%(最低4万円)

    月額費用の目安

    142,700円/月

    月額費用の内訳

    家賃
    137,000円
    管理費
    3,000円
    ルムサポ(月額)
    2,700円

    ※表示金額は概算となります。実際の金額とは異なる場合がございますので、詳細はお問い合わせのうえ内容をご確認ください。実際のご契約時には、最終のお見積もり金額が適用されます。
    また、入居までの間に管理会社や契約条件の変更等により、項目や金額が変更となる場合がございます。あらかじめご了承ください。

    ※保証会社の審査などにより、最終の見積もり金額が異なる可能性があります。また、保険料金についても請求できない可能性があります。

    ※入居日によっては、当月分の日割り賃料などがかかる可能性があります。日割り計算の方法は会社によって異なります。

    ※また別途、振込手数料がかかる場合があります。

    ときわ台駅の新着物件はこちら

    NEW2026/04/01 公開4月1日
    ワーフときわ台の物件情報を公開しました
    NEW2026/04/01 公開4月1日
    ビバリーホームズ常盤台Ⅲの物件情報を公開しました
    NEW2026/04/01 公開4月1日
    BELISTA常盤台の物件情報を公開しました
    NEW2026/03/31 公開3月31日
    ライオンズマンションときわ台第2の物件情報を公開しました
    NEW2026/03/31 公開3月31日
    ロアール板橋桜川の物件情報を公開しました
    NEW2026/03/31 公開3月31日
    Nステージ本蓮沼の物件情報を公開しました
    NEW2026/03/31 公開3月31日
    ラフィスタ中板橋の物件情報を公開しました
    NEW2026/03/30 公開3月30日
    ハイムけやきの物件情報を公開しました
    NEW2026/03/30 公開3月30日
    robot home ときわ台の物件情報を公開しました
    NEW2026/03/29 公開3月29日
    ピュアメゾンときわ台の物件情報を公開しました
    NEW2026/03/29 公開3月29日
    リブリ・ReposⅡの物件情報を公開しました
    NEW2026/03/29 公開3月29日
    アルファコート常盤台3の物件情報を公開しました
    NEW2026/03/29 公開3月29日
    リブリ・Glicineの物件情報を公開しました
    NEW2026/03/28 公開3月28日
    ベレッツァ中板橋の物件情報を公開しました
    NEW2026/03/28 公開3月28日
    ラヴニール南常盤台の物件情報を公開しました
    NEW2026/03/27 公開3月27日
    アドレッセンス51の物件情報を公開しました
    NEW2026/03/26 公開3月26日
    URBANLINKときわ台の物件情報を公開しました
    NEW2026/03/26 公開3月26日
    CREAL常盤台の物件情報を公開しました
    NEW2026/03/26 公開3月26日
    AZESTときわ台の物件情報を公開しました
    NEW2026/03/26 公開3月26日
    桜川2丁目戸建貸家の物件情報を公開しました

    ときわ台駅周辺の類似のお部屋を提案

    • 提案
      2日前公開再募集
      102号室

      84,000円管理費 6,500円(6,500円)

      • 敷無料
      • 礼2ヶ月
      • 仲1.1ヶ月

      1K / 26.97㎡

      東武東上線 上板橋駅 徒歩5分

      上板橋駅 徒歩5分

      居住中 / 2026年5月中旬

      20時間前更新

      ラリュール上板橋
    • 提案
      101号室

      138,000円管理費 5,000円(5,000円)

      • 敷無料
      • 礼2ヶ月
      • 仲1.1ヶ月

      1LDK / 39.06㎡

      東武東上線 ときわ台駅 徒歩12分

      ときわ台駅 徒歩12分

      建設中 / 2026年8月中旬

      20時間前更新

      セレスティア前野町
    • 提案
      101号室

      121,000円管理費 5,000円(5,000円)

      • 敷無料
      • 礼2ヶ月
      • 仲1.1ヶ月

      1LDK / 30.24㎡

      東京メトロ有楽町線 小竹向原駅 徒歩13分

      小竹向原駅 徒歩13分

      現在見学可 / 2026年6月下旬

      20時間前更新

      セレスティア小茂根
    • 提案
      6階

      200,000円管理費 12,000円(12,000円)

      • 敷無料
      • 礼無料
      • 仲無料

      初期トク

      2LDK / 55.65㎡

      東武東上線 ときわ台駅 徒歩12分

      ときわ台駅 徒歩12分

      居住中 / 2026年5月下旬

      1時間前更新

      URBANLINKときわ台