路線・駅から探す

エリアから探す

エアドアなら おとり物件なしで安心のお部屋探し

DIPS四ツ木 604号室

2時間前に最終更新
2時間前に最終更新
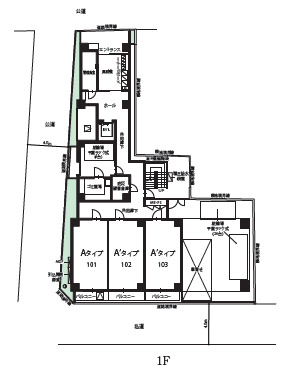
DIPS四ツ木604号室 間取
DIPS四ツ木604号室 外観パース
DIPS四ツ木604号室 部屋その他
DIPS四ツ木604号室 部屋その他
DIPS四ツ木604号室 部屋その他
DIPS四ツ木604号室 部屋その他

主なお部屋の設備

TVモニタ付きドアホン
エアコン付き
室内洗濯機置場
フローリング
クローゼット
インターホン

主な水回りの設備

浴室乾燥機
システムキッチン
温水洗浄便座
都市ガス
バス・トイレ別
洗面所独立
ガスコンロ

主な建物・共用設備

宅配ボックス
オートロック
24時間ゴミ出し可
エレベーター
駐輪場あり

この部屋の見学予定日は2026年5月中旬頃です

他の人の申込が入る前に

間取

DIPS四ツ木604号室 間取
DIPS四ツ木604号室 外観パース
DIPS四ツ木604号室 部屋その他
DIPS四ツ木604号室 部屋その他
DIPS四ツ木604号室 部屋その他
DIPS四ツ木604号室 部屋その他
604号室 / 1K / 25.72㎡ / 南東
東京都 葛飾区 四つ木1丁目45-2Mapをみる
間取り図
9.7万円
管理費12,000
無料無料
※エアドア規定価格
604号室 / 1K / 25.72㎡ / 南東
東京都 葛飾区 四つ木1丁目45-2

このお部屋について

DIPS四ツ木は葛飾区四つ木にある新築(2026年4月築)の7階建鉄筋コンクリート造マンション。 最寄り駅の京成押上線「四ツ木」駅徒歩7分。京成押上線「京成立石」駅徒歩15分です。 現在エアドアに賃貸募集中の部屋が6件掲載されています。 気になった方はお気軽にお問合わせください。 お部屋は1K、広さは25.72㎡。居住スペースと、キッチンスペースを分けたい方に便利な間取りです。 敷金なし・礼金なし・仲介手数料無料で、初期費用の負担を軽減し、各家電の購入に充てることができます。 基本設備のバストイレ別・洗面所独立・エアコン・コンロ2口以上完備で安心。 キッチンはシステムキッチン・ガスコンロ・コンロ2口以上あり。お料理好きの方にもピッタリ。 忙しい方に人気の宅配ボックス・浴室乾燥機・24時間ゴミ出し可設備もあり、快適な生活をサポートします。 人気条件のペット相談可・新築・分譲マンションのお部屋です。 こちらのお部屋の入居時期は、2026年5月下旬可能となっております。

初期費用概算

初期トク
248,200 +初月の日割り家賃・保証会社費用
初期費用クレカ決済可
募集中
申込なし
2026年5月下旬入居可
申込状況は、最終更新時のデータを反映しています。
「申込あり」のお部屋でもキャンセル待ち(審査落ち含む)を受け付けていることがあるため募集中として掲載しております。
申込なし
2026年5月下旬入居可
  • 物件詳細
  • MAP
  • 初期費用目安

アクセス

部屋の概要

DIPS四ツ木は葛飾区四つ木にある新築(2026年4月築)の7階建鉄筋コンクリート造マンション。 最寄り駅の京成押上線「四ツ木」駅徒歩7分。京成押上線「京成立石」駅徒歩15分です。 現在エアドアに賃貸募集中の部屋が6件掲載されています。 気になった方はお気軽にお問合わせください。 お部屋は1K、広さは25.72㎡。居住スペースと、キッチンスペースを分けたい方に便利な間取りです。 敷金なし・礼金なし・仲介手数料無料で、初期費用の負担を軽減し、各家電の購入に充てることができます。 基本設備のバストイレ別・洗面所独立・エアコン・コンロ2口以上完備で安心。 キッチンはシステムキッチン・ガスコンロ・コンロ2口以上あり。お料理好きの方にもピッタリ。 忙しい方に人気の宅配ボックス・浴室乾燥機・24時間ゴミ出し可設備もあり、快適な生活をサポートします。 人気条件のペット相談可・新築・分譲マンションのお部屋です。 こちらのお部屋の入居時期は、2026年5月下旬可能となっております。

部屋の特徴・設備

  • 宅配ボックス
  • オートロック
  • 独立洗面台
  • バストイレ別
  • コンロ2口以上
  • エアコン付き
  • 浴室乾燥機
  • 室内
    洗濯機置場
  • 温水洗浄便座
  • ペット相談可
キッチン・バス・トイレ
都市ガス、システムキッチン、バス・トイレ別、洗面所独立、浴室乾燥機、温水洗浄便座、ガスコンロ
セキュリティ
オートロック
室内設備
フローリング、クローゼット、インターホン、TVモニタ付きドアホン、室内洗濯機置場、エアコン付き
共用部
エレベーター、宅配ボックス、駐輪場あり、24時間ゴミ出し可
その他の条件
分譲マンション、新築、インターネット接続可、2階以上
入居条件
外国人相談可、ペット相談可、二人入居可
備考
共用部にはゴミ出し24時間OK・宅配ボックスなどが備わっておりとても充実しています。セキュリティ面/フレックスサポート1100円(月額) ■インターネット「シーファイブ、Wi-Fi」(無料) ■保証会社必須  ■解約2ヶ月前予告 ■短期解約違約金有 ■ペット飼育の場合保証金1ヶ月追加 ■入居審査後、インターネット・電気・ガス・水道のご利用に関し、業者よりお電話させて頂きます。  ■駐輪場・駐車場等の確認は共用部管理会社へお問い合わせください。 ■鍵交換代は、鍵代のことです。 ■新築物件に関しては引っ越し業者
駐車場

空きなし

要確認

管理番号: 283643

建物情報

物件名
DIPS四ツ木
(ディップスヨツギ)
所在階/階数
6階/7階建
向き
南東
物件種別
マンション
建物構造
鉄筋コンクリート
築年数
2026年4月(新築)
取引態様
契約形態
普通賃貸(24ヶ月)
保証会社
エポスカード 初期費用:賃料合計の50% 月額手数料:賃料の1.5% 年間費用なし
損保
必要
現況
建設中
入居可能日
2026年5月下旬
情報更新日
2026年4月17日
次回更新日
2026年5月1日

同じ建物内の他のお部屋

初期費用の目安

合計

139,200円+初月の日割り家賃・保証会社費用・備考

初期費用クレカ決済可

内訳

敷金
0円
礼金
0円
保証金
97,000円
仲介手数料(税込)
0円
損害保険料
18,000円
鍵交換代
24,200円
保証会社
エポスカード 初期費用:賃料合計の50% 月額手数料:賃料の1.5% 年間費用なし
備考
共用部にはゴミ出し24時間OK・宅配ボックスなどが備わっておりとても充実しています。セキュリティ面/フレックスサポート1100円(月額) ■インターネット「シーファイブ、Wi-Fi」(無料) ■保証会社必須  ■解約2ヶ月前予告 ■短期解約違約金有 ■ペット飼育の場合保証金1ヶ月追加 ■入居審査後、インターネット・電気・ガス・水道のご利用に関し、業者よりお電話させて頂きます。  ■駐輪場・駐車場等の確認は共用部管理会社へお問い合わせください。 ■鍵交換代は、鍵代のことです。 ■新築物件に関しては引っ越し業者

月額費用の目安

月額費用の目安
109,000円 / 月

内訳

家賃
97,000円
管理費
12,000円

アクセス

東京都 葛飾区 四つ木1丁目45-2

京成押上線 四ツ木駅 徒歩7分

京成押上線 京成立石駅 徒歩15分

マップを読み込む

エアドアアプリアイコン

エアドア アプリなら!

PUSH通知一次情報

人気の物件も先取り!

エアドアアプリなら

「プッシュ通知」×「一次情報」で

人気物件も先取り!

エアドアアプリアイコン

四ツ木駅の新着物件はこちら

エアドアは

エアドアは接客品質の向上に努めております

チェックマークを付けている女性のピクトグラム
  • 黄色のチェックマークしつこい電話なし
  • 黄色のチェックマーク強引な営業なし
  • 黄色のチェックマークお客様目線の対応

物件のご対応に問題がある場合は問題を報告するからご連絡ください。