路線・駅から探す

エリアから探す

エアドアなら おとり物件なしで安心のお部屋探し
ザ・パークハビオ本郷菊坂1001号室 外観

外観

ザ・パークハビオ本郷菊坂1001号室 外観

このお部屋について

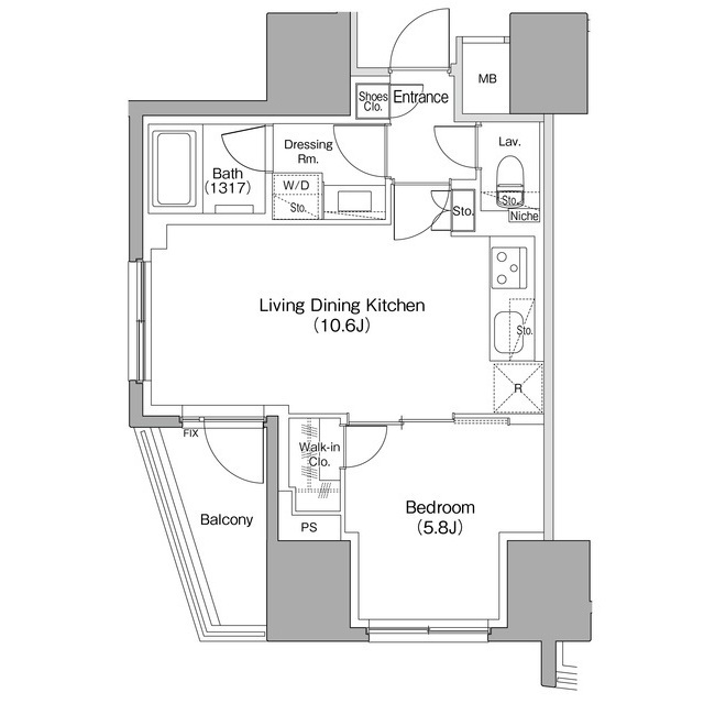
ザ・パークハビオ本郷菊坂は文京区本郷にある築4年(2021年6月築)の13階建鉄筋コンクリート造マンション。 最寄り駅の都営大江戸線「本郷三丁目」駅徒歩2分。東京メトロ丸ノ内線「本郷三丁目」駅徒歩3分です。 現在エアドアに賃貸募集中の部屋が4件掲載されています。 気になった方はお気軽にお問合わせください。 お部屋は1LDK、広さは41.02㎡。リビングと寝室を分けられるので、生活の切り替えにも便利な間取りです。 礼金なし・仲介手数料無料で、初期費用の負担を軽減し、各家電の購入に充てることができます。 基本設備のバストイレ別・エアコン・コンロ2口以上完備で安心。 キッチンはガスコンロ・コンロ2口以上あり。お料理好きの方にもピッタリ。 忙しい方に人気の宅配ボックス・追焚付き・浴室乾燥機設備もあり、快適な生活をサポートします。 人気条件のペット相談可・角部屋・築浅のお部屋です。 セキュリティ面はオートロック・防犯カメラで安心。単身や女性の方にもおすすめです。

ザ・パークハビオ本郷菊坂1001号室

10階 / 1LDK / 41.02㎡ / 東
東京都 文京区 本郷4丁目Mapをみる

掲載が終了したか、成約済みになった可能性がございます。
同じ建物の別のお部屋は以下をご覧ください。

募集中の同じ建物内の他のお部屋

  • 物件詳細
  • MAP

部屋の概要

ザ・パークハビオ本郷菊坂は文京区本郷にある築4年(2021年6月築)の13階建鉄筋コンクリート造マンション。 最寄り駅の都営大江戸線「本郷三丁目」駅徒歩2分。東京メトロ丸ノ内線「本郷三丁目」駅徒歩3分です。 現在エアドアに賃貸募集中の部屋が4件掲載されています。 気になった方はお気軽にお問合わせください。 お部屋は1LDK、広さは41.02㎡。リビングと寝室を分けられるので、生活の切り替えにも便利な間取りです。 礼金なし・仲介手数料無料で、初期費用の負担を軽減し、各家電の購入に充てることができます。 基本設備のバストイレ別・エアコン・コンロ2口以上完備で安心。 キッチンはガスコンロ・コンロ2口以上あり。お料理好きの方にもピッタリ。 忙しい方に人気の宅配ボックス・追焚付き・浴室乾燥機設備もあり、快適な生活をサポートします。 人気条件のペット相談可・角部屋・築浅のお部屋です。 セキュリティ面はオートロック・防犯カメラで安心。単身や女性の方にもおすすめです。

部屋の特徴・設備

  • 宅配ボックス
  • オートロック
  • 独立洗面台
  • バストイレ別
  • コンロ2口以上
  • エアコン付き
  • 浴室乾燥機
  • 室内
    洗濯機置場
  • 温水洗浄便座
  • ペット相談可
キッチン・バス・トイレ
給湯、バス・トイレ別、追焚付き、浴室乾燥機、温水洗浄便座、ガスコンロ
セキュリティ
オートロック、防犯カメラ
室内設備
フローリング、ウォークインクローゼット、バルコニー、室内洗濯機置場、エアコン付き
共用部
エレベーター、宅配ボックス、駐輪場あり、バイク置場あり
駐車場

-

管理番号: 2-5806-62-1001

建物情報

物件名
ザ・パークハビオ本郷菊坂
(ザパークハビオホンゴウキクザカ)
所在階/階数
10階/13階建
向き
物件種別
マンション
建物構造
鉄筋コンクリート
築年数
2021年6月(築4年)
エアドアアプリアイコン

エアドア アプリなら!

PUSH通知一次情報

人気の物件も先取り!

エアドアアプリなら

「プッシュ通知」×「一次情報」で

人気物件も先取り!

エアドアアプリアイコン

エアドアは

エアドアは接客品質の向上に努めております

チェックマークを付けている女性のピクトグラム
  • 黄色のチェックマークしつこい電話なし
  • 黄色のチェックマーク強引な営業なし
  • 黄色のチェックマークお客様目線の対応

物件のご対応に問題がある場合は問題を報告するからご連絡ください。