狙ったお部屋は逃さない
ダイレクト賃貸検索のエアドア

路線・駅から探す

エリアから探す

エアドアなら おとり物件なしで安心のお部屋探し
プラウドフラット南品川514号室 外観
プラウドフラット南品川514号室 エントランス

外観

プラウドフラット南品川514号室 外観
プラウドフラット南品川514号室 エントランス

このお部屋について

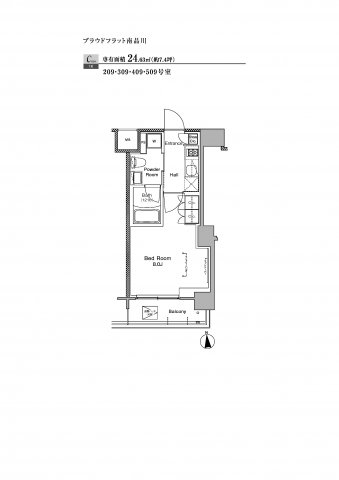
プラウドフラット南品川は品川区南品川にある築6年(2019年4月築)の9階建鉄筋コンクリート造マンション。 最寄り駅の京急本線「青物横丁」駅徒歩5分。東京臨海高速鉄道りんかい線「品川シーサイド」駅徒歩11分です。 お部屋は1K、広さは22.33㎡。居住スペースと、キッチンスペースを分けたい方に便利な間取りです。 仲介手数料無料で、初期費用もお得です。 基本設備のバストイレ別・エアコン・コンロ2口以上完備で安心。 キッチンはシステムキッチン・ガスコンロ・コンロ2口以上あり。満足いくキッチン環境が整っています。 忙しい方に人気の宅配ボックス・浴室乾燥機設備もあり、快適な生活をサポートします。 人気条件のペット相談可のお部屋です。 セキュリティ面はオートロック・管理人有り・防犯カメラで安心。単身や女性の方にもおすすめです。

プラウドフラット南品川514号室

5階 / 1K / 22.33㎡ / 北
東京都 品川区 南品川2丁目17-35Mapをみる

掲載が終了したか、成約済みになった可能性がございます。
同じ建物の別のお部屋は以下をご覧ください。

  • 物件詳細
  • MAP

部屋の概要

プラウドフラット南品川は品川区南品川にある築6年(2019年4月築)の9階建鉄筋コンクリート造マンション。 最寄り駅の京急本線「青物横丁」駅徒歩5分。東京臨海高速鉄道りんかい線「品川シーサイド」駅徒歩11分です。 お部屋は1K、広さは22.33㎡。居住スペースと、キッチンスペースを分けたい方に便利な間取りです。 仲介手数料無料で、初期費用もお得です。 基本設備のバストイレ別・エアコン・コンロ2口以上完備で安心。 キッチンはシステムキッチン・ガスコンロ・コンロ2口以上あり。満足いくキッチン環境が整っています。 忙しい方に人気の宅配ボックス・浴室乾燥機設備もあり、快適な生活をサポートします。 人気条件のペット相談可のお部屋です。 セキュリティ面はオートロック・管理人有り・防犯カメラで安心。単身や女性の方にもおすすめです。

部屋の特徴・設備

  • 宅配ボックス
  • オートロック
  • 独立洗面台
  • バストイレ別
  • コンロ2口以上
  • エアコン付き
  • 浴室乾燥機
  • 室内
    洗濯機置場
  • 温水洗浄便座
  • ペット相談可
キッチン・バス・トイレ
都市ガス、システムキッチン、給湯、バス・トイレ別、浴室乾燥機、温水洗浄便座、ガスコンロ
セキュリティ
オートロック、管理人有り、防犯カメラ
室内設備
フローリング、ケーブルテレビ、バルコニー、クローゼット、下駄箱、CSアンテナ、BSアンテナ、インターホン、TVモニタ付きドアホン、室内洗濯機置場、エアコン付き
共用部
エレベーター、宅配ボックス、駐輪場あり、バイク置場あり
駐車場

有り44,000円

月額44000円(税込)平置き(P7)サイズは現地確認ください。

管理番号: 204379

建物情報

物件名
プラウドフラット南品川
(プラウドフラットミナミシナガワ)
所在階/階数
5階/9階建
向き
物件種別
マンション
建物構造
鉄筋コンクリート
築年数
2019年4月(築6年)
エアドアアプリアイコン

エアドア アプリなら!

PUSH通知一次情報

人気の物件も先取り!

エアドアアプリなら

「プッシュ通知」×「一次情報」で

人気物件も先取り!

エアドアアプリアイコン

エアドアは

エアドアは接客品質の向上に努めております

チェックマークを付けている女性のピクトグラム
  • 黄色のチェックマークしつこい電話なし
  • 黄色のチェックマーク強引な営業なし
  • 黄色のチェックマークお客様目線の対応

物件のご対応に問題がある場合は問題を報告するからご連絡ください。