狙ったお部屋は逃さない
ダイレクト賃貸検索のエアドア

路線・駅から探す

エリアから探す

エアドアなら おとり物件なしで安心のお部屋探し
S-FORT中板橋105号室 外観
S-FORT中板橋105号室 エントランス

外観

S-FORT中板橋105号室 外観
S-FORT中板橋105号室 エントランス

このお部屋について

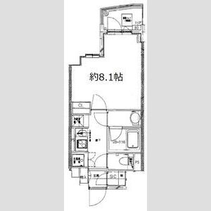
S-FORT中板橋は板橋区弥生町にある築17年(2008年3月築)の11階建鉄筋コンクリート造マンション。 最寄り駅の東武東上線「中板橋」駅徒歩8分。東武東上線「大山」駅徒歩13分です。 現在エアドアに賃貸募集中の部屋が7件掲載されています。 気になった方はお気軽にお問合わせください。 お部屋は1K、広さは27.34㎡。居住スペースと、キッチンスペースを分けたい方に便利な間取りです。 敷金なし・礼金なし・仲介手数料無料で、初期費用の負担を軽減し、新生活をスムーズにスタートさせることができます。 基本設備のバストイレ別・洗面所独立・エアコン・コンロ2口以上完備で安心。 キッチンはシステムキッチン・ガスコンロ・コンロ2口以上あり。満足いくキッチン環境が整っています。 忙しい方に人気の宅配ボックス完備。 人気条件のペット相談可・南向きのお部屋です。

S-FORT中板橋105号室

1階 / 1K / 27.34㎡ / 南
東京都 板橋区 弥生町72番6Mapをみる

掲載が終了したか、成約済みになった可能性がございます。
同じ建物の別のお部屋は以下をご覧ください。

募集中の同じ建物内の他のお部屋

  • 物件詳細
  • MAP

部屋の概要

S-FORT中板橋は板橋区弥生町にある築17年(2008年3月築)の11階建鉄筋コンクリート造マンション。 最寄り駅の東武東上線「中板橋」駅徒歩8分。東武東上線「大山」駅徒歩13分です。 現在エアドアに賃貸募集中の部屋が7件掲載されています。 気になった方はお気軽にお問合わせください。 お部屋は1K、広さは27.34㎡。居住スペースと、キッチンスペースを分けたい方に便利な間取りです。 敷金なし・礼金なし・仲介手数料無料で、初期費用の負担を軽減し、新生活をスムーズにスタートさせることができます。 基本設備のバストイレ別・洗面所独立・エアコン・コンロ2口以上完備で安心。 キッチンはシステムキッチン・ガスコンロ・コンロ2口以上あり。満足いくキッチン環境が整っています。 忙しい方に人気の宅配ボックス完備。 人気条件のペット相談可・南向きのお部屋です。

部屋の特徴・設備

  • 宅配ボックス
  • オートロック
  • 独立洗面台
  • バストイレ別
  • コンロ2口以上
  • エアコン付き
  • 浴室乾燥機
  • 室内
    洗濯機置場
  • 温水洗浄便座
  • ペット相談可
キッチン・バス・トイレ
都市ガス、システムキッチン、給湯、バス・トイレ別、洗面所独立、温水洗浄便座、ガスコンロ
セキュリティ
オートロック
室内設備
バルコニー、CSアンテナ、BSアンテナ、室内洗濯機置場、エアコン付き
共用部
宅配ボックス、駐輪場あり
駐車場

有り25,300円

サイズは現地確認お願いします。 その他不明点はお問合せください。

管理番号: 5915699

建物情報

物件名
S-FORT中板橋
(エスフォートナカイタバシ)
所在階/階数
1階/11階建
向き
物件種別
マンション
建物構造
鉄筋コンクリート
築年数
2008年3月(築17年)
エアドアアプリアイコン

エアドア アプリなら!

PUSH通知一次情報

人気の物件も先取り!

エアドアアプリなら

「プッシュ通知」×「一次情報」で

人気物件も先取り!

エアドアアプリアイコン

エアドアは

エアドアは接客品質の向上に努めております

チェックマークを付けている女性のピクトグラム
  • 黄色のチェックマークしつこい電話なし
  • 黄色のチェックマーク強引な営業なし
  • 黄色のチェックマークお客様目線の対応

物件のご対応に問題がある場合は問題を報告するからご連絡ください。