外観
クレイシアIDZ祐天寺Ⅱは世田谷区下馬にある築2年(2023年8月築)の4階建鉄筋コンクリート造マンション。 最寄り駅の東急東横線「祐天寺」駅徒歩7分。東急東横線「学芸大学」駅徒歩18分です。 セキュリティ面では、オートロック・防犯カメラで安心。単身や女性の方にもおすすめです。 共用設備には、エレベーター・宅配ボックスがございます。 間取りは現在1Kをご用意しております。 室内設備はバルコニー・クローゼット・室内洗濯機置場・エアコン付きがあり充実した設備環境です。 現在エアドアに賃貸募集中の部屋が1件掲載されています。 気になった方はお気軽にお問合わせください。
クレイシアIDZ祐天寺Ⅱは世田谷区下馬にある築2年(2023年8月築)の4階建鉄筋コンクリート造マンション。 最寄り駅の東急東横線「祐天寺」駅徒歩7分。東急東横線「学芸大学」駅徒歩18分です。 セキュリティ面では、オートロック・防犯カメラで安心。単身や女性の方にもおすすめです。 共用設備には、エレベーター・宅配ボックスがございます。 間取りは現在1Kをご用意しております。 室内設備はバルコニー・クローゼット・室内洗濯機置場・エアコン付きがあり充実した設備環境です。 現在エアドアに賃貸募集中の部屋が1件掲載されています。 気になった方はお気軽にお問合わせください。
エアドアは管理会社が直接掲載・毎日更新なので
最新物件・おとり物件なし
特徴クレイシアIDZ祐天寺Ⅱ
外観
エントランス
リビング
外観全14枚
リビング
玄関家賃13.3万円
管理費12,000円
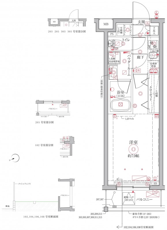
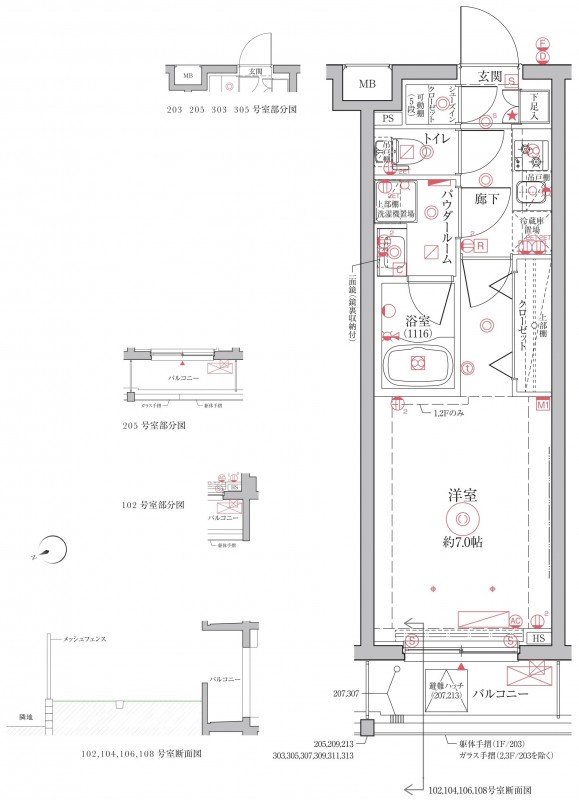
2階 /1K /25.52㎡ /北西
キャンセル待ちが可能な場合がございます。
ご興味のある方は、まずはお問い合わせください。
592,700円〜+初月の日割り家賃・保証会社費用
キャンセル待ちが可能な場合がございます。
ご興味のある方は、まずはお問い合わせください。
ご相談・お急ぎの方はこちら
お部屋探しCAFE ヘヤギメ!下北沢店仲介認定パートナー
営業時間:10:00~18:00定休日: null
ご相談・お急ぎの方はこちら
お部屋探しCAFE ヘヤギメ!下北沢店仲介認定パートナー
営業時間:10:00~18:00定休日: null
この部屋の特徴・設備
空きなし