外観
SYNEX YOKOHAMA-SHIMMACHIは横浜市神奈川区新町にある新築(2025年9月築)の9階建鉄筋コンクリート造マンション。 最寄り駅の京急本線「神奈川新町」駅徒歩2分。京急本線「京急東神奈川」駅徒歩8分です。 共用設備には、エレベーター・宅配ボックス・駐輪場ありがございます。 間取りは現在1Kをご用意しております。 室内設備はフローリング・バルコニー・クローゼット・下駄箱・室内洗濯機置場・エアコン付きがあり充実した設備環境です。 敷金なし・礼金なしのお部屋もあり、初期費用を抑えてお得にお引越しが可能。 現在エアドアに賃貸募集中の部屋が48件掲載されています。 気になった方はお気軽にお問合わせください。
SYNEX YOKOHAMA-SHIMMACHIは横浜市神奈川区新町にある新築(2025年9月築)の9階建鉄筋コンクリート造マンション。 最寄り駅の京急本線「神奈川新町」駅徒歩2分。京急本線「京急東神奈川」駅徒歩8分です。 共用設備には、エレベーター・宅配ボックス・駐輪場ありがございます。 間取りは現在1Kをご用意しております。 室内設備はフローリング・バルコニー・クローゼット・下駄箱・室内洗濯機置場・エアコン付きがあり充実した設備環境です。 敷金なし・礼金なしのお部屋もあり、初期費用を抑えてお得にお引越しが可能。 現在エアドアに賃貸募集中の部屋が48件掲載されています。 気になった方はお気軽にお問合わせください。
エアドアは管理会社が直接掲載・毎日更新なので
最新物件・おとり物件なし

リビング
外観全14枚
リビング
お風呂家賃8.85万円
管理費10,000円
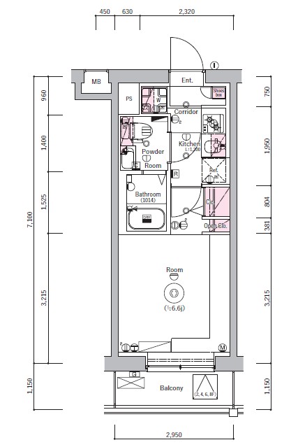
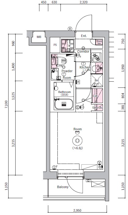
806号室 /1K /21.17㎡ /北東
キャンセル待ちが可能な場合がございます。
ご興味のある方は、まずはお問い合わせください。
約195,500円〜 +初月の日割り家賃・保証会社費用
キャンセル待ちが可能な場合がございます。
ご興味のある方は、まずはお問い合わせください。
物件の相談・当日の見学希望はこちら
お部屋探しCAFE ヘヤギメ!川崎店仲介認定パートナー
営業時間:10:00~18:00定休日: 水曜日(1月・2月・3月無休)、年末年始
物件の相談・当日の見学希望はこちら
お部屋探しCAFE ヘヤギメ!川崎店仲介認定パートナー
営業時間:10:00~18:00定休日: 水曜日(1月・2月・3月無休)、年末年始
この部屋の特徴・設備