外観
WEEKEND HOUSE ALLEYは鎌倉市七里ガ浜にある築18年(2008年2月築)の4階建鉄筋コンクリート造マンション。 最寄り駅の江ノ島電鉄「七里ヶ浜」駅徒歩2分。 間取りは現在1Rをご用意しております。 室内設備はフローリング・オール電化・室内洗濯機置場・エアコン付き・バルコニーがあり充実した設備環境です。 礼金なしのお部屋もあり、初期費用を抑えてお得にお引越しが可能。 現在エアドアに賃貸募集中の部屋が2件掲載されています。 気になった方はお気軽にお問合わせください。
WEEKEND HOUSE ALLEYは鎌倉市七里ガ浜にある築18年(2008年2月築)の4階建鉄筋コンクリート造マンション。 最寄り駅の江ノ島電鉄「七里ヶ浜」駅徒歩2分。 間取りは現在1Rをご用意しております。 室内設備はフローリング・オール電化・室内洗濯機置場・エアコン付き・バルコニーがあり充実した設備環境です。 礼金なしのお部屋もあり、初期費用を抑えてお得にお引越しが可能。 現在エアドアに賃貸募集中の部屋が2件掲載されています。 気になった方はお気軽にお問合わせください。
エアドアは管理会社が直接掲載・毎日更新なので
最新物件・おとり物件なし

リビング
外観全16枚
リビング
キッチン家賃39万円
管理費10,000円
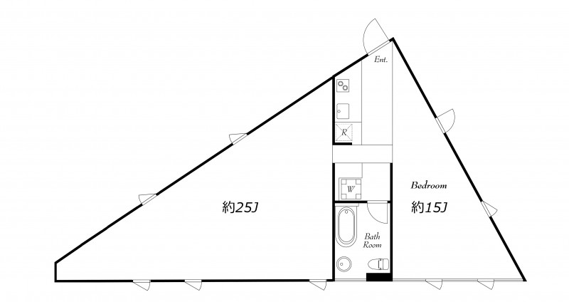
2階 /1R /88.41㎡ /東
初期トクとは初期費用のおトク度を表したスコアです。
例えば
「仲介手数料」と「礼金」のどちらかが0円なら
「仲介手数料」と「礼金」の両方が0円なら
さらに「フリーレント1ヶ月」があれば
最もおトクなお部屋は として評価されます。
約856,000円〜 +初月の日割り家賃・保証会社費用
物件の相談・当日の見学希望はこちら
株式会社たいほう不動産本店仲介認定パートナー
営業時間:10:00~12:30 , 13:30~18:00定休日: 水・日曜日
物件の相談・当日の見学希望はこちら
株式会社たいほう不動産本店仲介認定パートナー
営業時間:10:00~12:30 , 13:30~18:00定休日: 水・日曜日
この部屋の特徴・設備
有り33,000円